Zwangsversteigerung: 2401 Fischamend Gürtlgasse 34b - Einfamilienhaus

Ortsanfang    Ortsanfang  


Wien  ♦  Niederösterreich  ♦  Burgenland  ♦  Oberösterreich  ♦  Salzburg  ♦  Tirol  ♦  Vorarlberg  ♦  Steiermark  ♦  Kärnten


Information   Details
Edikt: Versteigerung (25.06.2026)
Gericht - Aktenzeichen: BG Schwechat (052) - 19 E 1401/25s
Liegenschaftsadresse: 2401 Fischamend Gürtlgasse 34b
Kategorie: Einfamilienhaus
Objektbezeichnung: Einfamilienhaus
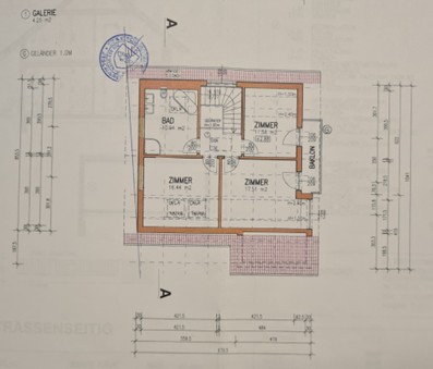
Beschreibung: Die ggst. Liegenschaft EZ 342 besteht aus den Grundstücken 172/16 und 390/38, ist annähernd eben gelegen, als unregelmäßiges Viereck ausgestaltet und verfügt an der Gürtelgasse über eine Straßenfrontlänge von rd. 30 m. Gem. Grundbuch verfügt die ggst. Liegenschaft über eine Grundstücksfläche von insgesamt 802 m². Auf der ggst. Liegenschaft befindet sich ein nicht unterkellertes und in Massivbauweise errich- tetes Wohnhaus, welches über ein Erdgeschoß und ein ausgebautes Dachgeschoß verfügt. Zu- dem gibt es ostseitig eine Doppelgarage. Der, ursprünglich zwischen dem Haus und der Garage gelegene Freibereich wurde mit einem Vorraum und dahinter liegendem Abstellraum/Speis baulich verschlossen. Das ggst. Einfamilienhaus weist gem. Einreichplan bzw. Grobvermessung eine Wohnnutzfläche von insgesamt rd. 148,45 m² auf. Diese teilt sich mit 87,73 m² auf das Erdgeschoß und mit 60,72 m² auf das Dachgeschoß auf. Im Erdgeschoß gibt es noch eine Terrasse mit rd. 40,50 m² und im Dachgeschoß einen Balkon mit rd. 3,61 m². Die Garage ist 42,25 m² groß. Die Flächen teilen sich wie folgt auf die einzelnen Geschoße und Bereiche auf: Siehe Gutachten Seite 20 Derzeigt besteht ein Abgabenrückstand von EUR 4.178,24 betreffend der gegenständlichen Liegenschaft.
Grundstücksgröße: 802 m²
Objektgröße: 148,45 m²
Schätzwert: 538.000,00
geringstes Gebot: 269.000,00
Vadium: 53.800,00
mitzuversteigerndes Zubehör: Einbauküche
Wert des Zubehörs: nicht festgestellt
Langgutachten: GA 2401 Fischamend, Gürtlgasse 34b_final.pdfGA 2401 Fischamend, Gürtlgasse 34b_final.pdf  
Lageplan: lage.jpglage.jpg  
Grundriss: greg.jpggreg.jpg   grog.jpggrog.jpg   grgg.pnggrgg.png  
Fotos: 1.jpg1.jpg   1a.jpg1a.jpg   1b.jpg1b.jpg   2.jpg2.jpg   3.jpg3.jpg   4.jpg4.jpg  
Direktlink: https://edikte.justiz.gv.at/    (Eingebundene Vorschaubilder sind embedded content von edikte.justiz.gv.at; die Links verweisen direkt auf die entsprechende externe Seite.)


Top Versicherungsschutz für Ihre Immobilie.
Durch online-Preisvergleich zur besten Eigenheimversicherung.
Top aktuelle Angebote: Stand 04/2026
Online-Test: Eigenheimversicherung
  Ihr Wohnkredit zu Top-Konditionen.
Kompetente, kostenlose Expertenberatung.
Für Hausbau oder Wohnungskauf.
Österreichweiter Marktvergleich.
Rasch und einfach: Wohnkredit-Rechner
  Das Maximum herausholen!
Die besten Sparzinsen Österreichs.
Fix (Festgeld) oder flexibel (täglich fällig).
Kostenloser Online-Zinsvergleich.
04/2026: Sparzinsen

Ortsende Wien  ♦  Niederösterreich  ♦  Burgenland  ♦  Oberösterreich  ♦  Salzburg  ♦  Tirol  ♦  Vorarlberg  ♦  Steiermark  ♦  Kärnten   

| Impressum  |  Datenschutz |