Zwangsversteigerung: 8124 Übelbach Pulverwerksiedlung 238 - Mehrfamilienhaus

Ortsanfang    Ortsanfang  


Wien  ♦  Niederösterreich  ♦  Burgenland  ♦  Oberösterreich  ♦  Salzburg  ♦  Tirol  ♦  Vorarlberg  ♦  Steiermark  ♦  Kärnten


Information   Details
Edikt: Versteigerung (22.04.2026)
Gericht - Aktenzeichen: BG Graz-West (641) - 309 E 17/25a
Liegenschaftsadresse: 8124 Übelbach Pulverwerksiedlung 238
Kategorie: Mehrfamilienhaus
Objektbezeichnung: Rohbau
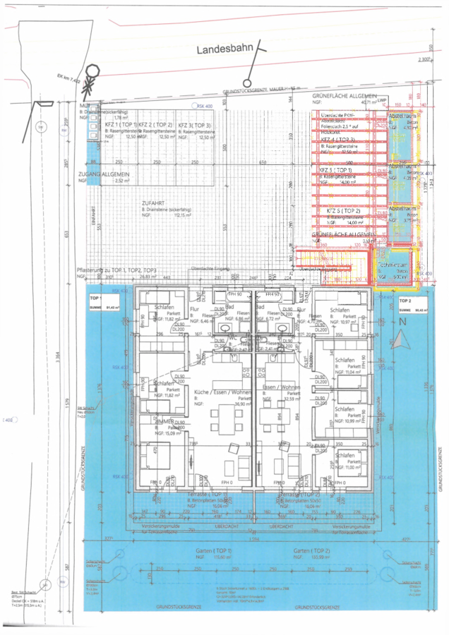
Beschreibung: Das GST-NR 719/19 bildet eine rechteckige Konfiguration und grenzt mit der nördlichen Grundgrenze an den Bahndamm der Steiermärkischen Landesbahnen an. Das Grundstück weist eine Länge von ca 34,30 m und eine Breite von ca 23,30 m auf. Die Liegenschaft ist mit einem Rohbau bebaut. Der Rohbau ist noch zur Gänze ohne Installationen und sonstige Ausbauten (Fenster, Türen etc) ausgeführt. Die Geschossdecke des Zubaus wurde ebenfalls nicht errichtet. Geplante Gesamtfläche (Top 1-3) 272,44 m². Anlässlich der Befundaufnahme konnten keine relevanten Schäden am Rohbau festgestellt werden. Wassereintritte durch Regen und stehendes Wasser auf der Terrasse im Obergeschoss waren feststellbar. Nach Auskunft der Marktgemeinde Übelbach besteht ein geringer Rückstand am Abgabenkonto in der Höhe von rund EUR 35,00. Die Bauabgabe wurde bezahlt. Das Vadium beträgt EUR 28.600,00 kann nur in Form einer Sparurkunde erlegt werden. Unter dem geringsten Gebot findet ein Verkauf nicht statt. An die dinglich Berechtigten, insbesondere an die Pfandgläubiger einschließlich der Gläubiger, zu deren Gunsten eine Höchstbetragshypothek eingetragen ist, sowie bezüglich der Steuern und Abgaben an die öffentlichen Organe ergehen die in der folgenden Nachricht enthaltenen Aufforderungen.
Grundstücksgröße: 800 m²
Objektgröße: 272,44 m²
Schätzwert: 286.000,00
geringstes Gebot: 143.000,00
Vadium: 28.600,00
Langgutachten: 2025_10_11_VKWGA Rohbau Übelbach.pdf2025_10_11_VKWGA Rohbau Übelbach.pdf   Fotodokumentation.pdfFotodokumentation.pdf   Einreichplan.pdfEinreichplan.pdf   Baubewilligung.pdfBaubewilligung.pdf   Zustimmung Bahnunternehmen.pdfZustimmung Bahnunternehmen.pdf  
Lageplan: Lageplan 1.jpgLageplan 1.jpg   Lageplan 2.jpgLageplan 2.jpg   Straßenkarte.jpgStraßenkarte.jpg  
Grundriss: Flächenwidmungsplan.pngFlächenwidmungsplan.png  
Direktlink: https://edikte.justiz.gv.at/    (Eingebundene Vorschaubilder sind embedded content von edikte.justiz.gv.at; die Links verweisen direkt auf die entsprechende externe Seite.)


Stromkosten sparen durch Anbieterwechsel!
Großer Strompreisvergleich für Österreich.
Stromanbieter online vergleichen und
in nur 3 Minuten Vertrag abschließen.
Strompreisvergleich online: Strom
  Top Versicherungsschutz für Ihre Immobilie.
Durch online-Preisvergleich zur besten Eigenheimversicherung.
Top aktuelle Angebote: Stand 04/2026
Online-Test: Eigenheimversicherung
  Autoversicherung online 04/2026.
Anbieter in ganz Österreich vergleichen
und damit bis zu 700 Euro sparen.
Versicherung bequem online abschließen.
Jetzt Prämie sparen: Autoversicherung

Ortsende Wien  ♦  Niederösterreich  ♦  Burgenland  ♦  Oberösterreich  ♦  Salzburg  ♦  Tirol  ♦  Vorarlberg  ♦  Steiermark  ♦  Kärnten   

| Impressum  |  Datenschutz |