Zwangsversteigerung: 9974 Prägraten St. Andrä 73 - gewerbliche Liegenschaft

Ortsanfang    Ortsanfang  


Wien  ♦  Niederösterreich  ♦  Burgenland  ♦  Oberösterreich  ♦  Salzburg  ♦  Tirol  ♦  Vorarlberg  ♦  Steiermark  ♦  Kärnten


Information   Details
Edikt: Versteigerung (10.11.2025)
Gericht - Aktenzeichen: BG Lienz (850) - 30 E 7/24t
Liegenschaftsadresse: 9974 Prägraten St. Andrä 73
Kategorie: gewerbliche Liegenschaft
Objektbezeichnung: Hotelbetrieb
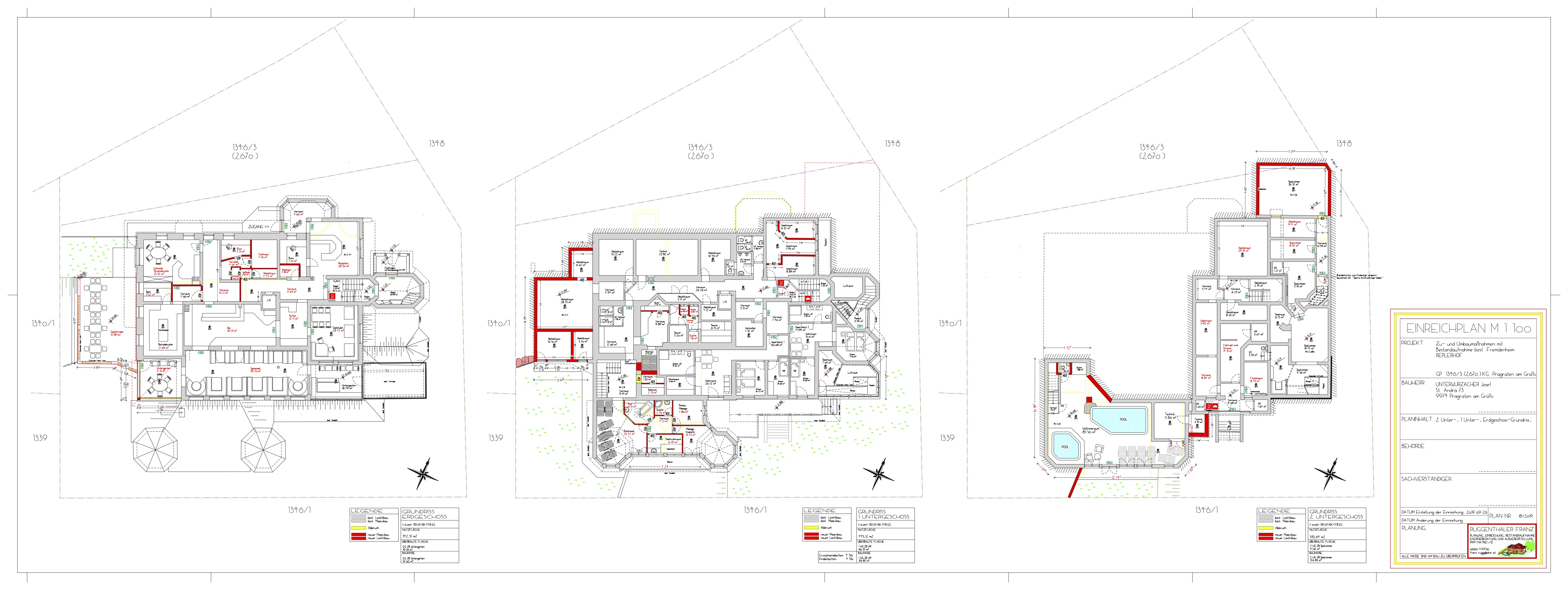
Beschreibung: Hotelanlage - Familienhotel bestehend aus 2 Untergeschossen, einem Erd- und 3 Obergeschossen. Neben den Apartments mit inges. 77 Betten bestehen die üblichen Räumlichkeiten wie Rezeption, Speisesaal, Gästeräume, Bar mit Buffet und in den Untergeschossen ein Kinderspiel- sowie ein Wellnessbereich mit Hallenbad, Sauna, Massageräumen. Im Gebäude befinden sich auch Privaträume, welche mit einem Wohnrecht belastet sind. Auf den sehr großen Außenflächen besteht ein Kinderspielplatz, 24 PKW-Abstellplätze sind noch zu errichten.
Grundstücksgröße: 10.033 m²
Schätzwert: 1.294.625,00
geringstes Gebot: 647.312,00
Vadium: 129.462,50
mitzuversteigerndes Zubehör: Einrichtung für die Rezeption, Lounge, Gaststube, Zimmer, Wellness
Wert des Zubehörs: 154.625,00
Langgutachten: U_11_25 Gutachten gesamt-compressed_signed.pdfU_11_25 Gutachten gesamt-compressed_signed.pdf   Gutachten Replerhof Jurak.pdfGutachten Replerhof Jurak.pdf  
Lageplan: Lageplan.jpgLageplan.jpg  
Grundriss: Pläne UG_EG web.jpgPläne UG_EG web.jpg   Pläne OG web.jpgPläne OG web.jpg  
Fotos: Fotos siehe Langgutachten.pngFotos siehe Langgutachten.png  
Direktlink: https://edikte.justiz.gv.at/    (Eingebundene Vorschaubilder sind embedded content von edikte.justiz.gv.at; die Links verweisen direkt auf die entsprechende externe Seite.)


Das Maximum herausholen!
Die besten Sparzinsen Österreichs.
Fix (Festgeld) oder flexibel (täglich fällig).
Kostenloser Online-Zinsvergleich.
10/2025: Sparzinsen
  Ideal für Beträge von 1.000 € bis 75.000 €
Der Ratenkredit aus dem Internet.
Einfach Zuhause die Anbieter vergleichen.
Abschluss online - schnell am Konto!
Hier: Kreditrate und Zinssatz berechnen!
  Ihr Wohnkredit zu Top-Konditionen.
Kompetente, kostenlose Expertenberatung.
Für Hausbau oder Wohnungskauf.
Österreichweiter Marktvergleich.
Rasch und einfach: Wohnkredit-Rechner

Ortsende Wien  ♦  Niederösterreich  ♦  Burgenland  ♦  Oberösterreich  ♦  Salzburg  ♦  Tirol  ♦  Vorarlberg  ♦  Steiermark  ♦  Kärnten   

| Impressum  |  Datenschutz |