Zwangsversteigerung: 7302 Nikitsch Raika-Siedlung 20 - Einfamilienhaus

Ortsanfang    Ortsanfang  


Wien  ♦  Niederösterreich  ♦  Burgenland  ♦  Oberösterreich  ♦  Salzburg  ♦  Tirol  ♦  Vorarlberg  ♦  Steiermark  ♦  Kärnten


Information   Details
Edikt: Versteigerung (26.06.2026)
Gericht - Aktenzeichen: BG Oberpullendorf (330) - 9 E 15/25m
Liegenschaftsadresse: 7302 Nikitsch Raika-Siedlung 20
Kategorie: Einfamilienhaus
Objektbezeichnung: Wohngebäude
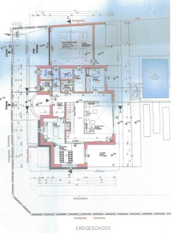
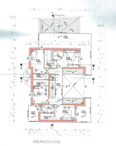
Beschreibung: Lage: Dieses Grundstück mit dem darauf befindlichen unfertigen Wohnhaus und dem Garagengebäude liegt am Ortsrand von Nikitsch, in der Raika-Siedlung befindlich, auf einer leichten Anhöhe und in Bezugnahme auf Nikitsch in einer guten Wohnlage, in einer neu erschlossenen Siedlung – Wohngebiet. Die Lage des Grundstückes ist eben, die Figuration in etwa quadratisch. Es handelt sich um ein Eckparzelle, sodass südost- und südwestseitig öffentliche Straßen vorbeiführen. Die umliegenden Grundstücke sind, soweit recherchiert und bekannt, mit diversen Wohn- und Nebengebäuden bebaut. Etliche der erschlossenen Grundstücke sind noch unbebaut. Infrastruktur: An infrastrukturellen Gegebenheiten sind in Nikitsch vorhanden: Gaststätten, Unterkünfte, ärztliche Einrichtungen, Volksschule und Kindergarten, Haltestellen, usw. Die nächstgelegenen größeren infrastrukturellen Gegebenheiten und öffentlichen Anschlussstellen befinden sich in der Bezirksvorstadt Oberpullendorf. Gebäudebeschreibung - Wohngebäude: Wie dem Baubescheid, der Beschreibung und dem Einreichplan zu entnehmen, wurde mit dem Bau des Einfamilienhauses mit Garage 2018 begonnen und ist das Gebäude bis dato nicht fertiggestellt und befindet sich in einem rohbauähnlichen Zustand. Das Wohnhaus, in gegliederter Grundrissform, ist zweigeschossig ausgeführt, bestehend aus Erdgeschoss und Obergeschoss/Dachgeschoss. Im Erdgeschoss des Wohnhauses bestehen Wohnzimmer, Esszimmer, Küche, Vorraum, Zimmer, Waschraum, WC, Waschraum, Gang und Technikraum. Festgehalten wird, dass im Bereich Zugang zur Garage geringfügige bauliche Änderungen vorgenommen wurden, sodass der Technikraum vergrößert und ein Waschraum im Bereich Lagerraum errichtet wurde mit dem Verbindungsgang zur Doppelgarage. Vorgesehen und planlich dargestellt ist eine Terrasse im Bereich Wohnen/Essen, wo ausschließlich die Fundamentplatte ersichtlich ist. Diesem Erdgeschoss angebaut ist eine Doppelgarage zur Gänze im Rohzustand und besteht noch kein Dach. Dem Erdgeschoss aufgebaut ist ein Ober-/Dachgeschoss mit Zimmer, Bad, Schrankraum, Zimmer, Schrankraum, WC, Schrankraum, Zimmer, Galerie, Zimmer und Badezimmer. Auch in diesem Ober-/Dachgeschoss erfolgte eine geringfügige Änderung und wurde das Badezimmer im Bereich der Terrasse vergrößert, sodass hier kein Schrankraum errichtet ist. Vorhanden sind im Ober-/Dachgeschoss drei Terrassen, wo gleichfalls nur die Decken mit einer provisorischen Bitumenabdichtung vorhanden sind. Ansonsten sind die Terrassen zur Gänze im Rohzustand (ausschließlich die statischen Systeme vorhanden). Die Aufschließung und Erreichung von Grundstück und Gebäude erfolgt von der Südwestseite aus (Zugang zum Haus und Zufahrt zur Garage). Die Geschosse im Wohnhaus sind über eine einläufige Stiege verbunden und besteht im Bereich Anschluss Galerie/Stiege im Ober-/Dachgeschoss ein Luftraum. Außenanlagen und Einfriedungen: Am Grundstück aufgestellt ist ein Nebengebäude, welches für die Errichtung des Rohbaus diente, jedoch keinen Verkehrswert – Marktwert besitzt. Weiters ist auch der geplante Pool nicht errichtet und keine Einfriedungen und Außenanla-ge. Diesbezüglich wird festgehalten, dass am Grundstück diverse Restmaterialien von Baustoffen und Müll abgelagert ist. Dies betrifft auch die Doppelgarage.
Grundstücksgröße: 872 m²
Objektgröße: 156,47 m²
Schätzwert: 218.000,00
geringstes Gebot: 109.000,00
Vadium: 21.800,00
Langgutachten: GA_EXE Perikov.pdfGA_EXE Perikov.pdf  
Lageplan: MB.jpgMB.jpg   Lageplan.jpgLageplan.jpg  
Grundriss: Grundriss EG.jpgGrundriss EG.jpg   Grundriss OG.jpgGrundriss OG.jpg  
Fotos: 1 Gesamt.JPG1 Gesamt.JPG   2 Gesamt.JPG2 Gesamt.JPG   3 Gesamt.JPG3 Gesamt.JPG   4 OG.JPG4 OG.JPG   5 OG.JPG5 OG.JPG   6 OG.JPG6 OG.JPG   7 OG.JPG7 OG.JPG   9 EG.JPG9 EG.JPG   8 OG.JPG8 OG.JPG   10 EG.JPG10 EG.JPG   11 EG.JPG11 EG.JPG   12 EG.JPG12 EG.JPG   13 NG.JPG13 NG.JPG  
Direktlink: https://edikte.justiz.gv.at/    (Eingebundene Vorschaubilder sind embedded content von edikte.justiz.gv.at; die Links verweisen direkt auf die entsprechende externe Seite.)


Supergünstig zum Eigenheim!
Über 60 Anbieter im kostenlosen
Online‑Kreditvergleich (Stand 04/2026)
Die besten Angebote - fix und variabel.
Top-Konditionen - schnell am Konto!
  Kredit umschulden und Kosten sparen
mit einem Umschuldungskredit.
Egal ob Ratenkredit oder Immobilienkredit.
Kredite zu Top-Konditionen umschulden.
Hier: die neue Kreditrate berechnen!
  Stromkosten sparen durch Anbieterwechsel!
Großer Strompreisvergleich für Österreich.
Stromanbieter online vergleichen und
in nur 3 Minuten Vertrag abschließen.
Strompreisvergleich online: Strom

Ortsende Wien  ♦  Niederösterreich  ♦  Burgenland  ♦  Oberösterreich  ♦  Salzburg  ♦  Tirol  ♦  Vorarlberg  ♦  Steiermark  ♦  Kärnten   

| Impressum  |  Datenschutz |