Zwangsversteigerung: 2410 Hainburg an der Donau Joseph Machkan Gasse 6 - Einfamilienhaus

Ortsanfang    Ortsanfang  


Wien  ♦  Niederösterreich  ♦  Burgenland  ♦  Oberösterreich  ♦  Salzburg  ♦  Tirol  ♦  Vorarlberg  ♦  Steiermark  ♦  Kärnten


Information   Details
Edikt: Versteigerung (25.11.2025)
Gericht - Aktenzeichen: BG Bruck an der Leitha (050) - 3 E 2769/24t
Liegenschaftsadresse: 2410 Hainburg an der Donau Joseph Machkan Gasse 6
Kategorie: Einfamilienhaus
Objektbezeichnung: Rohbau-Einfamilienhaus
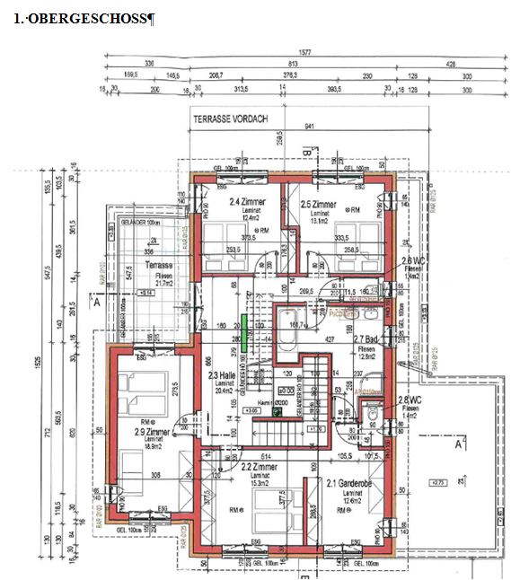
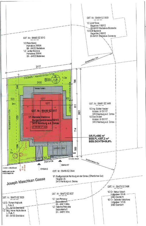
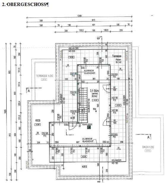
Beschreibung: Es handelt sich um einen Rohbau eines Einfamilienhauses mit einer Garage. Die erste Baubewilligung für das Erdgeschoss und 1. Obergeschoss wurde am 09.10.2015 erteilt. Am 17.08.2023 wurde zusätzlich um die Baubewilligung für ein zurückgesetztes 2. Obergeschoss angesucht, die Baubewilligung wurde am 10.10.2023 erteilt. Aufgrund dieser nachträglichen Änderung fehlt im Rohbau die Stiege vom 1. Obergeschoss in das 2. Obergeschoss, für die ein Durchbruch in der Decke hätte ausgeführt werden müssen. Das Dach ist lediglich mit einem angabengemäß dichten Aufbeton auf die Betondeckenfertigteile hergestellt, die Dachhaut fehlt jedoch noch. Energieausweis: Das geplante Wohngebäude hätte einen spezifischen Heizwärmebedarf HBW von 36,9 kWh/m²a, der Gesamtenergieeffizienz-Faktor fGEE ist mit 0,69 ausgewiesen und würde somit einem Niedrigenergiehaus (B) entsprechen. Die Außenanlagen sind noch nicht hergestellt worden, nur südlich ist die Nachbarschaftseinfriedung vorhanden; östlich und westlich besteht noch keine Einfriedung. Es wird angenommen, dass konsensgemäß gebaut wurde und keine Abweichungen der tatsächlichen Bauführung vom genehmigten Bauplan vorliegen. Das Gebäude besteht aktuell lediglich aus dem Ziegelrohbau des Erdgeschosses und des 1. Obergeschosses. Das 2. Obergeschoss, der Durchbruch und die Stiege selbst, um vom 1. in das 2. Obergeschoss zu gelangen, Wärmedämmung, Fassade, sowie die Dachdeckungs-, Spengler- und Zimmererarbeiten sind noch offen, um den Rohbau fertigzustellen. Interessenten wird empfohlen, die Liegenschaft vor dem Erwerb zu besichtigen.
Grundstücksgröße: 592 m²
Objektgröße: 269,40 m²
Schätzwert: 359.000,00
geringstes Gebot: 179.500,00
Vadium: 35.900,00
mitzuversteigerndes Zubehör: Die Bewertung der Liegenschaften beinhaltet grundsätzlich alle auf dem Grundstück errichteten Gebäude und das darin eingebaute und fix montierte Zubehör, insbesondere auch alle Gebäudeausstattungen wie z.B. Sanitär-, Heizungs- und Elektroinstallationen, samt deren Anlagen und Gerätschaften. Im Verkehrswert sind auch alle anderen Baulichkeiten und Sonderbauwerke, wie z.B. die vorhandenen Außenanlagen, Einfriedungen, sämtliche Ver- und Entsorgungseinrichtungen, bzw. entsprechende Anlagen enthalten. Bei nicht gesondert ausgewiesener Bewertung des o. a. Zubehörs ist dieses im Wertansatz des Gebäudewertes berücksichtigt. Inventar ist nicht Gegenstand dieser Wertermittlung.
Langgutachten: 20250115_SV-G-2024-10-01_E_BG_Bruck_Vaskova_EFH_Hainburg_signed.pdf  
Lageplan: Lageplan.JPGLageplan.JPG   Lageplan-Fläwi.JPGLageplan-Fläwi.JPG   Lageplan_EP.JPGLageplan_EP.JPG  
Grundriss: Grundriss_EG.JPGGrundriss_EG.JPG   Grundriss_1-OG.JPGGrundriss_1-OG.JPG   Grundriss_2-OG.JPGGrundriss_2-OG.JPG   Ansichten_EP-1.JPGAnsichten_EP-1.JPG   Ansichten_EP-2.JPGAnsichten_EP-2.JPG   Schnitte_EP.JPGSchnitte_EP.JPG  
Fotos: Foto_1.JPGFoto_1.JPG   Foto_2.JPGFoto_2.JPG   Foto_3.JPGFoto_3.JPG   Foto_4.JPGFoto_4.JPG   Foto_5.JPGFoto_5.JPG  
Direktlink: https://edikte.justiz.gv.at/    (Eingebundene Vorschaubilder sind embedded content von edikte.justiz.gv.at; die Links verweisen direkt auf die entsprechende externe Seite.)


Die Finanzierung für Ihren Hausbau:
Baufinanzierung & Baukredit-Rechner.
Maßgeschneidert und Top-Konditionen.
Schnelle & unbürokratische Abwicklung.
Monatsrate und Zinsen: Online-Rechner
  Kredit umschulden und Kosten sparen
mit einem Umschuldungskredit.
Egal ob Ratenkredit oder Immobilienkredit.
Kredite zu Top-Konditionen umschulden.
Hier: die neue Kreditrate berechnen!
  Autoversicherung online 10/2025.
Anbieter in ganz Österreich vergleichen
und damit bis zu 700 Euro sparen.
Versicherung bequem online abschließen.
Jetzt Prämie sparen: Autoversicherung

Ortsende Wien  ♦  Niederösterreich  ♦  Burgenland  ♦  Oberösterreich  ♦  Salzburg  ♦  Tirol  ♦  Vorarlberg  ♦  Steiermark  ♦  Kärnten   

| Impressum  |  Datenschutz |