Zwangsversteigerung: 4523 Neuzeug Tafernstraße 10 - Einfamilienhaus

Ortsanfang    Ortsanfang  


Wien  ♦  Niederösterreich  ♦  Burgenland  ♦  Oberösterreich  ♦  Salzburg  ♦  Tirol  ♦  Vorarlberg  ♦  Steiermark  ♦  Kärnten


Information   Details
Edikt: Versteigerung (12.01.2026)
Gericht - Aktenzeichen: BG Steyr (492) - 11 E 932/25f
Liegenschaftsadresse: 4523 Neuzeug Tafernstraße 10
Kategorie: Einfamilienhaus
Objektbezeichnung: Wohnhaus mit Garage
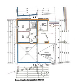
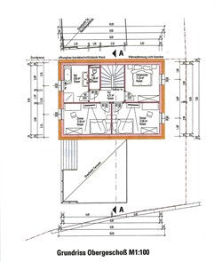
Beschreibung: Gegenständliches Wohnhaus liegt ca. 3 km südöstlich vom Marktgemeindeamt SIERNING (Ortsteil PICHLERN). GST. Nr. 55/9 ist ein stark geneigtes Hanggrundstück und durch ein Wohnhaus mit Garage bebaut. Das Wohnhaus gliedert sich in KG, EG, OG, ist ein Massivbau und durch ein Flachdach abgedeckt. Beim Wohnhaus mit Garage sind erhebliche Fertigstellungsarbeiten notwendig. Siehe beiliegende Fotos bzw. Langgutachten.
Grundstücksgröße: 323 m²
Objektgröße: 112,00 m²
Schätzwert: 224.000,00
geringstes Gebot: 112.000,00
Vadium: 22.400,00
mitzuversteigerndes Zubehör: kein Zubehör
Langgutachten: Langgutachten.pdfLanggutachten.pdf  
Lageplan: Lageplan.jpgLageplan.jpg   Flächenwidmungsplan.jpgFlächenwidmungsplan.jpg  
Grundriss: kg plan.jpgkg plan.jpg   eg plan.jpgeg plan.jpg   og plan.jpgog plan.jpg   schnitt.jpgschnitt.jpg  
Fotos: a1.jpga1.jpg   a2.jpga2.jpg   a3.jpga3.jpg   garage.jpggarage.jpg   kg.jpgkg.jpg   eg.jpgeg.jpg   eg2.jpgeg2.jpg   eg3.jpgeg3.jpg   eg4.jpgeg4.jpg   og1.jpgog1.jpg   og2.jpgog2.jpg   og3.jpgog3.jpg  
Direktlink: https://edikte.justiz.gv.at/    (Eingebundene Vorschaubilder sind embedded content von edikte.justiz.gv.at; die Links verweisen direkt auf die entsprechende externe Seite.)


Die Finanzierung für Ihren Hausbau:
Baufinanzierung & Baukredit-Rechner.
Maßgeschneidert und Top-Konditionen.
Schnelle & unbürokratische Abwicklung.
Monatsrate und Zinsen: Online-Rechner
  Top Versicherungsschutz für Ihre Immobilie.
Durch online-Preisvergleich zur besten Eigenheimversicherung.
Top aktuelle Angebote: Stand 10/2025
Online-Test: Eigenheimversicherung
  Ihr Wohnkredit zu Top-Konditionen.
Kompetente, kostenlose Expertenberatung.
Für Hausbau oder Wohnungskauf.
Österreichweiter Marktvergleich.
Rasch und einfach: Wohnkredit-Rechner

Ortsende Wien  ♦  Niederösterreich  ♦  Burgenland  ♦  Oberösterreich  ♦  Salzburg  ♦  Tirol  ♦  Vorarlberg  ♦  Steiermark  ♦  Kärnten   

| Impressum  |  Datenschutz |