Zwangsversteigerung: 1180 Wien Theresiengasse 16 - Eigentumswohnung

Ortsanfang    Ortsanfang  


Wien  ♦  Niederösterreich  ♦  Burgenland  ♦  Oberösterreich  ♦  Salzburg  ♦  Tirol  ♦  Vorarlberg  ♦  Steiermark  ♦  Kärnten


Information   Details
Edikt: Versteigerung (03.06.2026)
Gericht - Aktenzeichen: BG Döbling (015) - 26 E 13/25s
Liegenschaftsadresse: 1180 Wien Theresiengasse 16
Kategorie: Eigentumswohnung
Objektbezeichnung: Wohnung Top 03
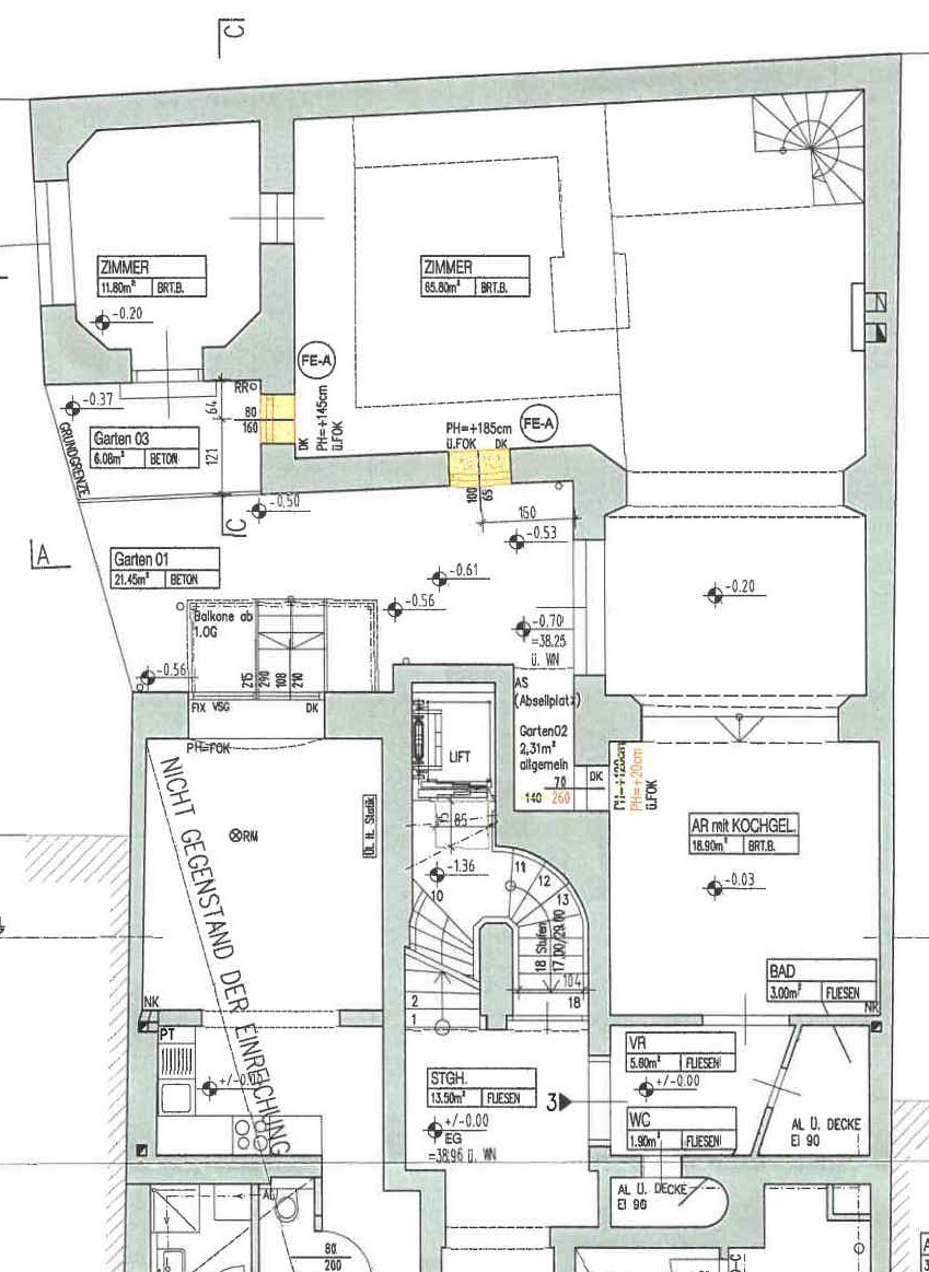
Beschreibung: Wohnung im Erdgeschoß mit Zwischenebene im Hofanbau. Eingang im Straßentrakt, übergehend in Hofanbau. Ausrichtung gegen Hof und Fenster in der Feuermauer gegen Nachbarn ON 18 (A2-Blatt lfd. Nr. 1a). Fixverglasung gegen Nachbarn ON 14. Gas-Etagenheizung, Radiatoren. Ruhige Lage. Zubehör: Garten, Einlagerungsraum im Keller (in Natur nicht übereinstimmend mit Plandarstellung).
Objektgröße: 107,00 m²
Schätzwert: 130.000,00
geringstes Gebot: 65.000,00
Vadium: 13.000,00
Langgutachten: GA 1180 Theresieng 16_Geschwärzt.pdfGA 1180 Theresieng 16_Geschwärzt.pdf   Beilagen zum Gutachten_Geschwärzt.pdfBeilagen zum Gutachten_Geschwärzt.pdf  
Lageplan: Karte-29.jpgKarte-29.jpg  
Grundriss: GR EG.jpgGR EG.jpg   Schnitte.jpgSchnitte.jpg  
Fotos: DSC03441kl.jpgDSC03441kl.jpg   GA - 1.jpgGA - 1.jpg   GA - 2.jpgGA - 2.jpg   GA - 3.jpgGA - 3.jpg   GA - 4.jpgGA - 4.jpg   GA - 5.jpgGA - 5.jpg   GA - 6.jpgGA - 6.jpg   GR ZW.jpgGR ZW.jpg  
Direktlink: https://edikte.justiz.gv.at/    (Eingebundene Vorschaubilder sind embedded content von edikte.justiz.gv.at; die Links verweisen direkt auf die entsprechende externe Seite.)


Kredit umschulden und Kosten sparen
mit einem Umschuldungskredit.
Egal ob Ratenkredit oder Immobilienkredit.
Kredite zu Top-Konditionen umschulden.
Hier: die neue Kreditrate berechnen!
  Geld sparen durch Gaspreisvergleich.
Gasanbieter vergleichen, wechseln und
damit mehrere hundert Euro sparen.
Kostenlos und unverbindlich - alles online.
Jetzt österreichweit Gaspreise vergleichen.
  Stromkosten sparen durch Anbieterwechsel!
Großer Strompreisvergleich für Österreich.
Stromanbieter online vergleichen und
in nur 3 Minuten Vertrag abschließen.
Strompreisvergleich online: Strom

Ortsende Wien  ♦  Niederösterreich  ♦  Burgenland  ♦  Oberösterreich  ♦  Salzburg  ♦  Tirol  ♦  Vorarlberg  ♦  Steiermark  ♦  Kärnten   

| Impressum  |  Datenschutz |