Zwangsversteigerung: 7533 Ollersdorf Hochfeldsiedlung 1 und 1a - Einfamilienhaus

Ortsanfang    Ortsanfang  


Wien  ♦  Niederösterreich  ♦  Burgenland  ♦  Oberösterreich  ♦  Salzburg  ♦  Tirol  ♦  Vorarlberg  ♦  Steiermark  ♦  Kärnten


Information   Details
Edikt: Versteigerung (05.11.2025)
Gericht - Aktenzeichen: BG Güssing (310) - 6 E 33/25b
Liegenschaftsadresse: 7533 Ollersdorf Hochfeldsiedlung 1 und 1a
Kategorie: Einfamilienhaus
Objektbezeichnung: Objekt 1
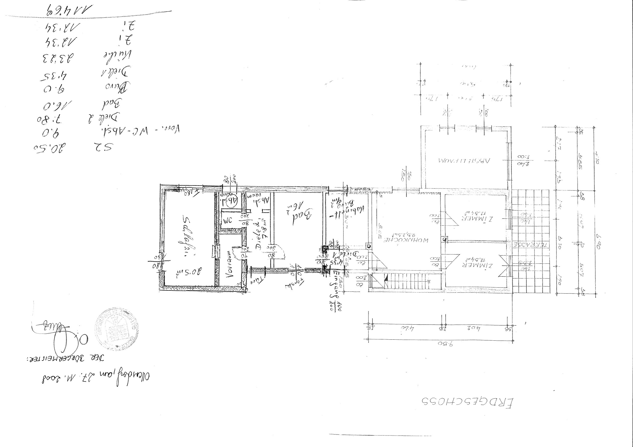
Beschreibung: Lage: Die Grundstücke 3415 und 3417/1 mit den darauf befindlichen Objekten bilden in der Natur eine wirtschaftliche Einheit und befinden sich im westseitigen Ortsbereich von Ollersdorf. Die Aufschließung und Erreichung erfolgt über die südseitig anschließende Hochfeldsiedlung, die Lage der Grundstücke ist leicht geneigt, die Figuration unregelmäßig. Die umliegenden Grundstücke sind durchwegs mit Wohn- und Wirtschaftsgebäuden bebaut. Infrastruktur: Sämtliche infrastrukturelle Gegebenheiten wie Gaststätten, Einkaufsmöglichkeiten für den täglichen Gebrauch, Schulen, Banken, Ärzte etc. sowie öffentliche Haltestellen be-finden sich in näherer Umgebung bzw. in Litzelsdorf und Stegersbach. Gebäudebeschreibung Wohngebäude mit Nebenräumen: Ein genaues Erbauungsdatum der Grundsubstanz des Objektes ist nicht bekannt und konnte auch nicht angegeben werden. Pläne und Bescheide vom Errichtungszeitpunkt liegen nicht vor. Laut Baubewilligungsbescheid erfolgte am 1980 ein Zubau, wofür 1984 die Benützungsbewilligung erteilt wurde. Das Objekt ist großteils eingeschoßig in Massivbauweise mit Teilunterkellerung errichtet. An Wohnräumen bestehen im Erdgeschoß Wohnzimmer, Küche, Kinderzimmer, Vorraum, Badezimmer, Waschküche, Schlafzimmer, WC und Zwischenflur. An Nebenräumen sind vorhanden Abstellräume, Heizraum und Garage. Im Keller befinden sich zwei Kellerräume. Die Aufschließung und Erreichung erfolgt über die südseitig anschließende Hochfeldsiedlung, sodass Zugang und Zufahrt von dieser aus gegeben sind. Das Keller- und Erdgeschoß sind durch eine Stiege miteinander verbunden. Gebäudebeschreibung altes Wohngebäude: Dieses wurde ausschließlich fotografisch dokumentiert, nachdem es keinen Verkehrs-wert / Marktwert darstellt. Außenanlagen und Einfriedungen: Zwischen den beiden Wohngebäuden befindet sich ein Holzzaun mit doppelflügeligem Holztürl. Die Zugangsflächen sind mit Waschbetonplatten belegt, die Innenhofflächen begrünt. Straßenseitig hergestellt ist ein Sockel- und Pfeilermauerwerk, in Waschbeton ausgeführt, mit Holzfüllungen in einem schlechten Zustand. Dem Wohnhaus ist eine verflieste Terrasse mit Holzgeländer vorgelagert. Das Traufenpflaster ist mit Waschbetonplatten belegt, die Zufahrtsflächen sind asphaltiert. Die nicht bebauten und befestigten Flächen stellen Grünzonen dar.
Grundstücksgröße: 2.850 m²
Objektgröße: 108,56 m²
Schätzwert: 60.465,00
geringstes Gebot: 30.232,00
Vadium: 6.046,50
Langgutachten: GA 6 E 33-25b.pdf  
Lageplan: MB.jpgMB.jpg  
Grundriss: EP Zubau 1984 1.jpgEP Zubau 1984 1.jpg   EP Zubau 1984 2.jpgEP Zubau 1984 2.jpg   EP Zubau 1984 3.jpgEP Zubau 1984 3.jpg   EP Zubau 1984 4.jpgEP Zubau 1984 4.jpg   EP Einfriedung 1988.jpgEP Einfriedung 1988.jpg   Bestandsskizze 2008.jpgBestandsskizze 2008.jpg  
Fotos: 01 Außanansicht WH mit NR.jpg01 Außanansicht WH mit NR.jpg   th102 außenansicht wh  mit nr.jpgth102 außenansicht wh  mit nr.jpg   01 Außanansicht WH mit NR.jpg01 Außanansicht WH mit NR.jpg   03 Außenansicht WH mit NR.jpg03 Außenansicht WH mit NR.jpg   04 Außenansicht WH mit NR.jpg04 Außenansicht WH mit NR.jpg   05 Außenansicht WH mit NR.jpg05 Außenansicht WH mit NR.jpg   06 Außenansicht WH mit NR.jpg06 Außenansicht WH mit NR.jpg   07 EG Wohnzimmer.jpg07 EG Wohnzimmer.jpg   08 EG Küche.jpg08 EG Küche.jpg   09 EG Küche.jpg09 EG Küche.jpg   10 EG Kinderzimmer.jpg10 EG Kinderzimmer.jpg   11 EG Schlafzimmer.jpg11 EG Schlafzimmer.jpg   12 EG NR Abstellraum.jpg12 EG NR Abstellraum.jpg   13 EG NR Heizraum.jpg13 EG NR Heizraum.jpg   14 KG Kellerraum 1.jpg14 KG Kellerraum 1.jpg   15 KG Kellerraum 2.jpg15 KG Kellerraum 2.jpg   16 Innenhof.jpg16 Innenhof.jpg   17 Innenhof.jpg17 Innenhof.jpg   18 Außenansicht altes WH.jpg18 Außenansicht altes WH.jpg   19 Außenansicht altes WH.jpg19 Außenansicht altes WH.jpg   20 Außenanlagen.jpg20 Außenanlagen.jpg  
Direktlink: https://edikte.justiz.gv.at/    (Eingebundene Vorschaubilder sind embedded content von edikte.justiz.gv.at; die Links verweisen direkt auf die entsprechende externe Seite.)


Top Versicherungsschutz für Ihre Immobilie.
Durch online-Preisvergleich zur besten Eigenheimversicherung.
Top aktuelle Angebote: Stand 10/2025
Online-Test: Eigenheimversicherung
  Stromkosten sparen durch Anbieterwechsel!
Großer Strompreisvergleich für Österreich.
Stromanbieter online vergleichen und
in nur 3 Minuten Vertrag abschließen.
Strompreisvergleich online: Strom
  Supergünstig zum Eigenheim!
Über 60 Anbieter im kostenlosen
Online‑Kreditvergleich (Stand 10/2025)
Die besten Angebote - fix und variabel.
Top-Konditionen - schnell am Konto!

Ortsende Wien  ♦  Niederösterreich  ♦  Burgenland  ♦  Oberösterreich  ♦  Salzburg  ♦  Tirol  ♦  Vorarlberg  ♦  Steiermark  ♦  Kärnten   

| Impressum  |  Datenschutz |