Zwangsversteigerung: 9081 Reifnitz Seenstraße 27a und 27b - Wohnungseigentumsobjekt

Ortsanfang    Ortsanfang  


Wien  ♦  Niederösterreich  ♦  Burgenland  ♦  Oberösterreich  ♦  Salzburg  ♦  Tirol  ♦  Vorarlberg  ♦  Steiermark  ♦  Kärnten


Information   Details
Edikt: Versteigerung (27.05.2026)
Gericht - Aktenzeichen: BG Klagenfurt (721) - 13 E 26/25h
Liegenschaftsadresse: 9081 Reifnitz Seenstraße 27a und 27b
Kategorie: Wohnungseigentumsobjekt
Objektbezeichnung: Tiefgaragenstellplatz TG 29
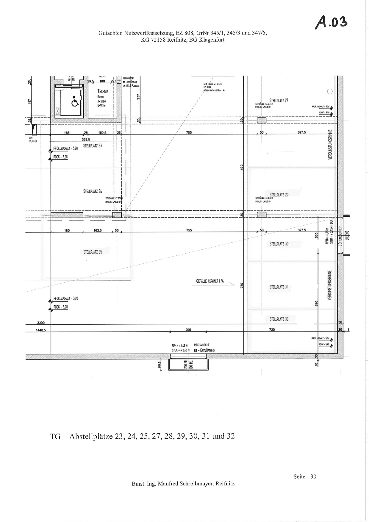
Beschreibung: Die Projektgesellschaft trivium gmbh & Co Ertragswerte 50 KG hat auf der EZ 808 eine Wohnungseigentumsanlage errichtet. Auf der Liegenschaft befinden sich 2 Wohnhäuser mit insgesamt 26 Wohnungen, 1 PKW-Abstellplatz Garage, 18 KFZ-Abstellplätze-Carport mit angeschlossenen Lagerräumen und eine Tiefgarage mit 32 TG-Stellplätze. Entlang der östlichen Grundgrenze verläuft die Zufahrt für die EZ 462 mit dem Grundstück 345/2 (Dienstbarkeit Wegerecht über Gst 345/1 gem. Abs. 9. Kaufvertrag vom 17.10.1960, im Grundbuch C-LNr 1a). Die Wohnungseigentumsanlage befindet sich in Reifnitz, südwestlich der Wörthersee-Süduferstraße gelegen, ca. 380 m Luftlinie vom Seeufer des Wörthersees entfernt. Die L 97b - Reifnitzer Landesstraße/Seenstraße verläuft nördlich der Liegenschaft direkt angrenzend. Das Ortszentrum von Maria Wörth erreicht man in ca. 2,5 km. Die bewertungsrelevanten Tiefgaragenplätze TG 25, TG 29, TG 30, TG 31 und TG 32 liegen im südöstlichen Bereich der Tiefgarage, die überdachte Ein- und Ausfahrt liegt an der nördlichen Grundgrenze. Die Tiefgarage ist in Massivbauweise errichtet, die Wände, Stützen und die Decke stellen Sichtbeton dar, die Bodenoberfläche ist asphaltiert, die Parkplätze sind abgegrenzt und nummeriert. Der Bau- und Erhaltungszustand der Wohnanlage mit der Tiefgarage ist in einem, dem Alter entsprechenden, neuwertigen und normal erhaltenen Zustand. Lt. Angabe der Hausverwaltung FOHN Immobilienverwaltung GmbH sind bei der Tiefgarage jedoch noch Abdichtungsmaßnahmen erforderlich.
Grundstücksgröße: 4.429 m²
Objektgröße: 12,25 m²
Schätzwert: 22.500,00
geringstes Gebot: 16.875,00
Vadium: 2.250,00
Langgutachten: Gutachten ohne Anlagen.pdfGutachten ohne Anlagen.pdf   Anlagen ohne Pläne.pdfAnlagen ohne Pläne.pdf  
Lageplan: 20251104081812263-0001.jpg20251104081812263-0001.jpg  
Grundriss: 20251104081812263-0003.jpg20251104081812263-0003.jpg  
Fotos: Fotodoku G-43-25-0002.jpgFotodoku G-43-25-0002.jpg   Fotodoku G-43-25-0003.jpgFotodoku G-43-25-0003.jpg   Fotodoku G-43-25-0004.jpgFotodoku G-43-25-0004.jpg  
Direktlink: https://edikte.justiz.gv.at/    (Eingebundene Vorschaubilder sind embedded content von edikte.justiz.gv.at; die Links verweisen direkt auf die entsprechende externe Seite.)


Autoversicherung online 04/2026.
Anbieter in ganz Österreich vergleichen
und damit bis zu 700 Euro sparen.
Versicherung bequem online abschließen.
Jetzt Prämie sparen: Autoversicherung
  Die Finanzierung für Ihren Hausbau:
Baufinanzierung & Baukredit-Rechner.
Maßgeschneidert und Top-Konditionen.
Schnelle & unbürokratische Abwicklung.
Monatsrate und Zinsen: Online-Rechner
  Supergünstig zum Eigenheim!
Über 60 Anbieter im kostenlosen
Online‑Kreditvergleich (Stand 04/2026)
Die besten Angebote - fix und variabel.
Top-Konditionen - schnell am Konto!

Ortsende Wien  ♦  Niederösterreich  ♦  Burgenland  ♦  Oberösterreich  ♦  Salzburg  ♦  Tirol  ♦  Vorarlberg  ♦  Steiermark  ♦  Kärnten   

| Impressum  |  Datenschutz |