Zwangsversteigerung: 2442 Ebreichsdorf Brodersdorfer Straße 52 - Reihenhaus

Ortsanfang    Ortsanfang  


Wien  ♦  Niederösterreich  ♦  Burgenland  ♦  Oberösterreich  ♦  Salzburg  ♦  Tirol  ♦  Vorarlberg  ♦  Steiermark  ♦  Kärnten


Information   Details
Edikt: Versteigerung (09.12.2025)
Gericht - Aktenzeichen: BG Baden (040) - 5 E 45/24i
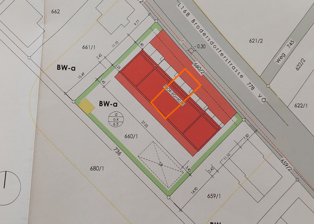
Liegenschaftsadresse: 2442 Ebreichsdorf Brodersdorfer Straße 52
Kategorie: Reihenhaus
Objektbezeichnung: Reihenhaus inkl. 2 Stpl. (WEG)
Beschreibung: Die bewertungsgegenständlichen Wohnungseigentums-Objekte Reihenhaus Top 3 (B-LNR. 41), KFZ-Stellplatz 5 (B-LNR. 42) und KFZ-Stellplatz 6 (B-LNR. 43) befinden sich an der Brodersdorfer Straße 52 in 2442 Ebreichsdorf und sind zugehörig der Liegenschaft mit dem Grundbuchskörper der Katastralgemeinde KG 04113 Unterwaltersdorf mit der Einlagezahl EZ 376 und dem Grundstück mit der Grundstücksnummer Gst-Nr. 660/1 mit einer Grundstücksfläche von 1.641 m². Die WEG-Objekte stehen im Eigentum der SKORA Immobilien GmbH (FN 477489s) mit der B-LNR 41, 42 und 43 und den Anteilen 181/1026, 5/513 und 1/114. Der Baukörper wurde im Jahr 2015 in Massivbauweise erbaut. Der Bescheid mit der Baubewilligung für die Errichtung einer Reihenhausanlage wurde am 31.10.2014 von der Stadtgemeinde Ebreichsdorf ausgestellt und am 09.08.2019 wurde von der Stadtgemeinde Ebreichsdorf die Bestätigung der Teil-Fertigstellung für das WEG-Objekt Reihenhaus Top 3 ausgestellt. Das Reihenhaus liegt mittig in der Reihenhausanlage und besteht aus einem Kellergeschoß, einem Erdgeschoß und einem Obergeschoß. Die Gesamtwohnnutzfläche (EG & OG) des Reihenhauses beträgt 113,00 m² (gemäß Nutzwertgutachten 19.11.2015). Dem Reihenhaus zugehörig sind die überdachten KFZ-Stellplätze 5 und 6, die straßenseitig nordöstlich des Reihenhauses unter dem Carport situiert sind. Insgesamt befindet sich das Gebäude augenscheinlich in einem sehr guten Bau- und Erhaltungszustand. Es konnten keine offensichtlichen Baumängel oder -schäden festgestellt werden. Aktuell sind die WEG-Objekte bis 30.06.2029 befristet vermietet.
Grundstücksgröße: 1.641 m²
Objektgröße: 113,00 m²
Schätzwert: 336.600,00
geringstes Gebot: 168.300,00
Vadium: 33.660,00
mitzuversteigerndes Zubehör: Sanitäranlagen & Küche
Wert des Zubehörs: 7.600,00
Langgutachten: 1521_GERICHT_Brodersdorfer_Straße_Ebreichsdorf_a.pdf  
Lageplan: Lageplan_Brodersdorferstr.pngLageplan_Brodersdorferstr.png  
Grundriss: Grundriss_KG_Brodersdorfer.pngGrundriss_KG_Brodersdorfer.png   Grundriss_EG_Brodersdorfer.pngGrundriss_EG_Brodersdorfer.png   Grundriss_OG_Brodersdorfer.pngGrundriss_OG_Brodersdorfer.png   Schnitt_Brodersdorferstr.pngSchnitt_Brodersdorferstr.png  
Fotos: Front_Brodersdorfer.pngFront_Brodersdorfer.png   Eingang_Brodersdorfer.pngEingang_Brodersdorfer.png   Vorraum_Broders.pngVorraum_Broders.png   WC_Broders.pngWC_Broders.png   WR_Broders.pngWR_Broders.png   WZ_Broders.pngWZ_Broders.png   Küche_Broders.pngKüche_Broders.png   STG_OG_Broders.pngSTG_OG_Broders.png   VR_OG_Brodes.pngVR_OG_Brodes.png   Bad_OG_Broders.pngBad_OG_Broders.png   ZI_OG_Broders.pngZI_OG_Broders.png   Loggia_OG_Broders.pngLoggia_OG_Broders.png   KG_Broders.pngKG_Broders.png   KG_Broders_II.pngKG_Broders_II.png   Loggia_Broders.pngLoggia_Broders.png   Garten_Broders.pngGarten_Broders.png   Fassade_G_Broders.pngFassade_G_Broders.png  
Direktlink: https://edikte.justiz.gv.at/    (Eingebundene Vorschaubilder sind embedded content von edikte.justiz.gv.at; die Links verweisen direkt auf die entsprechende externe Seite.)


Das Maximum herausholen!
Die besten Sparzinsen Österreichs.
Fix (Festgeld) oder flexibel (täglich fällig).
Kostenloser Online-Zinsvergleich.
10/2025: Sparzinsen
  Kredit umschulden und Kosten sparen
mit einem Umschuldungskredit.
Egal ob Ratenkredit oder Immobilienkredit.
Kredite zu Top-Konditionen umschulden.
Hier: die neue Kreditrate berechnen!
  Geld sparen durch Gaspreisvergleich.
Gasanbieter vergleichen, wechseln und
damit mehrere hundert Euro sparen.
Kostenlos und unverbindlich - alles online.
Jetzt österreichweit Gaspreise vergleichen.

Ortsende Wien  ♦  Niederösterreich  ♦  Burgenland  ♦  Oberösterreich  ♦  Salzburg  ♦  Tirol  ♦  Vorarlberg  ♦  Steiermark  ♦  Kärnten   

| Impressum  |  Datenschutz |