Zwangsversteigerung: 1180 Wien Währinger Gürtel 5 - Wohnungseigentumsobjekt

Ortsanfang    Ortsanfang  


Wien  ♦  Niederösterreich  ♦  Burgenland  ♦  Oberösterreich  ♦  Salzburg  ♦  Tirol  ♦  Vorarlberg  ♦  Steiermark  ♦  Kärnten


Information   Details
Edikt: Versteigerung (14.01.2026)
Gericht - Aktenzeichen: BG Döbling (015) - 26 E 20/23t
Liegenschaftsadresse: 1180 Wien Währinger Gürtel 5
Kategorie: Wohnungseigentumsobjekt
Objektbezeichnung: Geschäftslokal
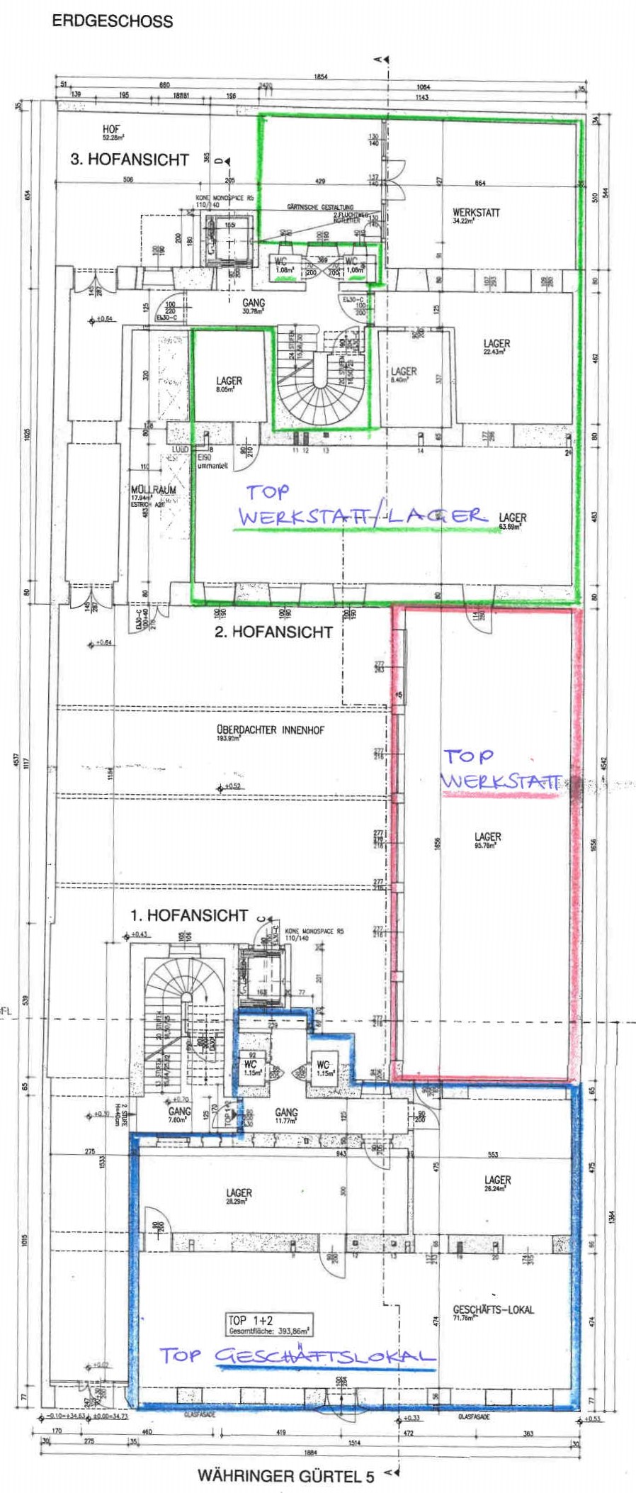
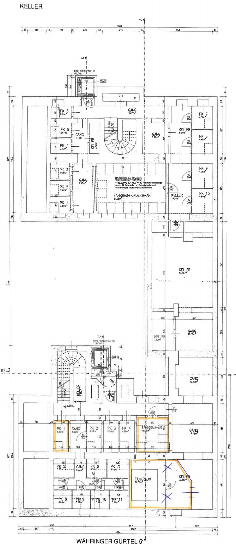
Beschreibung: Geschäftslokal mit Lager-, Werkstatt-, und Sanitärflächen im Erdgeschoß. Im Grundbuch 3 getrennte Wohnungseigentumseinheiten, in Natur mit Durchbrüchen räumlich verbunden und als wirtschaftliche Einheit gemeinsam vermietet. Heizung und Klimatisierung über Einzelsplitgeräte, welche auf dem straßenseitigen Vordach montiert sind. Derzeitige Ausstattung durch Investitionen des Mieters. Top Werkstatt/Lager in Natur größer ausgeführt als in den baugenehmigten Plänen erfasst. Die grundbücherlich zugeordneten Kellerabteile konnten in Natur nicht verifiziert werden. Im Grundrissplan sind die benützten Kellerabteile markiert.
Objektgröße: 393,42 m²
Schätzwert: 623.000,00
geringstes Gebot: 311.500,00
Vadium: 62.300,00
Langgutachten: GA 1180 Währinger Gürtel 5 anonym.pdfGA 1180 Währinger Gürtel 5 anonym.pdf   Beilagen zum Gutachten.pdfBeilagen zum Gutachten.pdf  
Lageplan: Karte-46.jpgKarte-46.jpg  
Grundriss: Plan KG Benützung.jpgPlan KG Benützung.jpg   Plan EG Benützung.jpgPlan EG Benützung.jpg  
Fotos: DSC03729kl.jpgDSC03729kl.jpg   GA Befundaufnahme - 1.jpgGA Befundaufnahme - 1.jpg   GA Befundaufnahme - 2.jpgGA Befundaufnahme - 2.jpg   GA Befundaufnahme - 3.jpgGA Befundaufnahme - 3.jpg   GA Befundaufnahme - 4.jpgGA Befundaufnahme - 4.jpg   GA Befundaufnahme - 5.jpgGA Befundaufnahme - 5.jpg   GA Befundaufnahme - 6.jpgGA Befundaufnahme - 6.jpg   GA Befundaufnahme - 7.jpgGA Befundaufnahme - 7.jpg   GA Befundaufnahme - 8.jpgGA Befundaufnahme - 8.jpg  
Direktlink: https://edikte.justiz.gv.at/    (Eingebundene Vorschaubilder sind embedded content von edikte.justiz.gv.at; die Links verweisen direkt auf die entsprechende externe Seite.)


Das Maximum herausholen!
Die besten Sparzinsen Österreichs.
Fix (Festgeld) oder flexibel (täglich fällig).
Kostenloser Online-Zinsvergleich.
10/2025: Sparzinsen
  Ideal für Beträge von 1.000 € bis 75.000 €
Der Ratenkredit aus dem Internet.
Einfach Zuhause die Anbieter vergleichen.
Abschluss online - schnell am Konto!
Hier: Kreditrate und Zinssatz berechnen!
  Autoversicherung online 10/2025.
Anbieter in ganz Österreich vergleichen
und damit bis zu 700 Euro sparen.
Versicherung bequem online abschließen.
Jetzt Prämie sparen: Autoversicherung

Ortsende Wien  ♦  Niederösterreich  ♦  Burgenland  ♦  Oberösterreich  ♦  Salzburg  ♦  Tirol  ♦  Vorarlberg  ♦  Steiermark  ♦  Kärnten   

| Impressum  |  Datenschutz |