Zwangsversteigerung: 6800 Feldkirch Böschenmahdstraße 30+30a - Eigentumswohnung

Ortsanfang    Ortsanfang  


Wien  ♦  Niederösterreich  ♦  Burgenland  ♦  Oberösterreich  ♦  Salzburg  ♦  Tirol  ♦  Vorarlberg  ♦  Steiermark  ♦  Kärnten


Information   Details
Edikt: Versteigerung (21.05.2026)
Gericht - Aktenzeichen: BG Feldkirch (921) - 5 E 543/26v
Liegenschaftsadresse: 6800 Feldkirch Böschenmahdstraße 30+30a
Kategorie: Eigentumswohnung
Objektbezeichnung: Wohnung Top 19
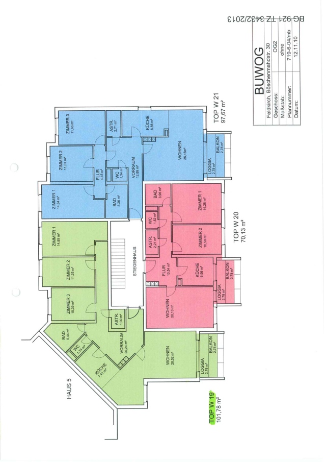
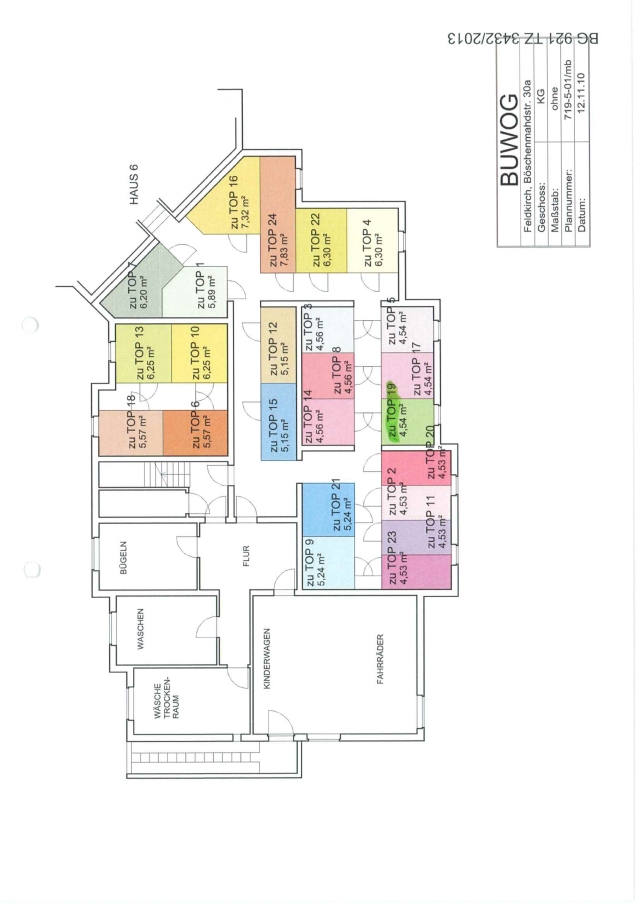
Beschreibung: Die Wohnanlage besteht aus zwei verbundenen Baukörpern mit je einem Kellergeschoss, Erdgeschoss und drei Obergeschossen. Das Gebäude ist in Massivbauweise errichtet, Flachdach, Putzfassade, Holzrahmenfenster, isolierverglast, Fernwärme-Heizung. Kurz- bis langfristig ist mit Sanierungsmaßnahmen zu rechnen. Die Wohnung Top 19 befindet sich im 2. OG, Böschenmahdstraße 30. Die Wohnung hat eine Wohnfläche von 101,78 m², Balkon 2,78 m², Balkon 2,78 m² (nicht getrennt), Keller 4,54 m². Bodenbeläge: Fliesen, Laminat, Wönde, Decken verputzt, gemalt. Wohnung wurde teilsaniert.
Grundstücksgröße: 4.155 m²
Objektgröße: 101,78 m²
Schätzwert: 290.000,00
geringstes Gebot: 217.500,00
Vadium: 29.000,00
mitzuversteigerndes Zubehör: Bad: Waschtisch-Unterschrank WC: Waschtisch-Verbau Küche: Einbauküche mit Geräten
Wert des Zubehörs: 3.000,00
Langgutachten: Bewertung.pdfBewertung.pdf   Beilagendokument.pdfBeilagendokument.pdf  
Lageplan: lageplan.jpglageplan.jpg   Flächenwidmug.jpgFlächenwidmug.jpg   luftbild.jpgluftbild.jpg   stadtpl.jpgstadtpl.jpg  
Grundriss: jjeztwg.jpgjjeztwg.jpg   wohn19.jpgwohn19.jpg  
Fotos: vorraum.jpgvorraum.jpg   zimmer1.jpgzimmer1.jpg   Zimmer2.jpgZimmer2.jpg   zimm3.jpgzimm3.jpg   bad1.jpgbad1.jpg   bad2.jpgbad2.jpg   WC!.jpgWC!.jpg   küche.jpgküche.jpg   wohnen.jpgwohnen.jpg   balkon.jpgbalkon.jpg   balkontür.jpgbalkontür.jpg   parreienbkjeller.jpgparreienbkjeller.jpg   kellerzu19.jpgkellerzu19.jpg   Eingang.jpgEingang.jpg   steigenh.jpgsteigenh.jpg   waschkü.jpgwaschkü.jpg   südsostan.jpgsüdsostan.jpg   norstnordwe.jpgnorstnordwe.jpg   zuganggarteana.jpgzuganggarteana.jpg  
Direktlink: https://edikte.justiz.gv.at/    (Eingebundene Vorschaubilder sind embedded content von edikte.justiz.gv.at; die Links verweisen direkt auf die entsprechende externe Seite.)


Geld sparen durch Gaspreisvergleich.
Gasanbieter vergleichen, wechseln und
damit mehrere hundert Euro sparen.
Kostenlos und unverbindlich - alles online.
Jetzt österreichweit Gaspreise vergleichen.
  Kredit umschulden und Kosten sparen
mit einem Umschuldungskredit.
Egal ob Ratenkredit oder Immobilienkredit.
Kredite zu Top-Konditionen umschulden.
Hier: die neue Kreditrate berechnen!
  Stromkosten sparen durch Anbieterwechsel!
Großer Strompreisvergleich für Österreich.
Stromanbieter online vergleichen und
in nur 3 Minuten Vertrag abschließen.
Strompreisvergleich online: Strom

Ortsende Wien  ♦  Niederösterreich  ♦  Burgenland  ♦  Oberösterreich  ♦  Salzburg  ♦  Tirol  ♦  Vorarlberg  ♦  Steiermark  ♦  Kärnten   

| Impressum  |  Datenschutz |