Zwangsversteigerung: 1220 Wien Saikogasse 9/Eipeldauer Straße 38/Thonetgasse 33 - Wohnungseigentumsobjekt, gewerbliche Liegenschaft, Sonstiges

Ortsanfang    Ortsanfang  


Wien  ♦  Niederösterreich  ♦  Burgenland  ♦  Oberösterreich  ♦  Salzburg  ♦  Tirol  ♦  Vorarlberg  ♦  Steiermark  ♦  Kärnten


Information   Details
Edikt: Versteigerung (09.06.2026)
Gericht - Aktenzeichen: BG Donaustadt (027) - 68 E 27/25v
Liegenschaftsadresse: 1220 Wien Saikogasse 9/Eipeldauer Straße 38/Thonetgasse 33
Kategorie: Wohnungseigentumsobjekt, gewerbliche Liegenschaft, Sonstiges
Objektbezeichnung: Geschäftslokal
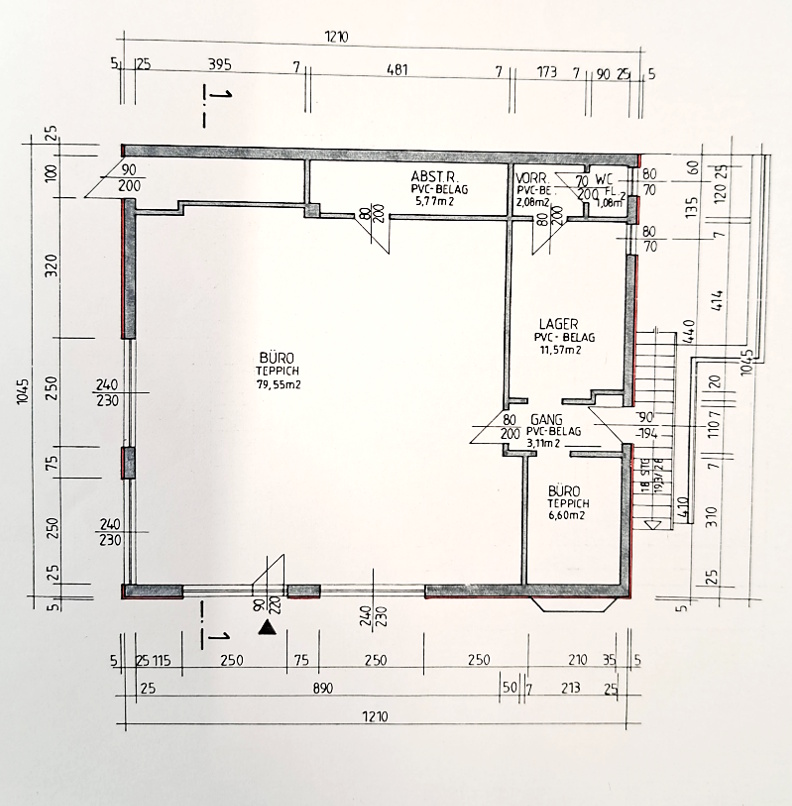
Beschreibung: Bewertungsgegenständlich sind 119/25437-Wohnungseigentumsanteile untrennbar verbunden mit Wohnungseigentum an Geschäftslokal St VI (B-lfd. Nr. 657). Die gegenständliche Liegenschaft liegt im 22. Wiener Gemeindebezirk in der Katastralgemeinde Kagran. Die Liegenschaft umfasst eine Grundstücksfläche von 19.273 m². Darauf befindlich eine um das Jahr 1971 erbaute Wohnhausanlage, mit 7 Baukörpern die insgesamt 27 Stiegen umfassen. Die Wärmeversorgung erfolgt mittels zentraler Haus-Gaskesselheizung. Der Gebäudebestand befindet sich in einem dem Alter entsprechenden Bauzustand und in einem insgesamt guten Erhaltungszustand. Das Geschäftslokal befindet sich in einem Zubau, der an der Ostseite der Stiege 6 angebaut ist und umfasst laut dem bei der Baubehörde aufliegenden Plan rund 110 m². Gemäß Nutzwertgutachten beträgt die Größe des Bewertungsgegenstandes rund 119 m²; die Differenz ist nicht abschließend nachvollziehbar. Der Planbestand (Grundriss) weicht von dem in der Natur vorhandenen Bestand zum Teil geringfügig ab. Das Geschäftslokal besteht aus einem großen Büroraum sowie Nebenräumen samt Sanitärbereich und Sozialraum. Das Geschäftslokal weist einen gebrauchten, durchschnittlich guten Zustand auf; es besteht Modernisierungsbedarf. Ein Befund gemäß § 6 bzw. 7 Elektrotechnikverordnung 2020 liegt nicht vor. Die Energiekennzahlen sind im Langgutachten genannt. Das im Bewertungsgegenstand befindliche Inventar, Einrichtungsgegenstände, Büroausstattungen und sonstige Fahrnisse sind nicht bewertungsgegenständlich. Es wird in der Wertermittlung davon ausgegangen, dass das Geschäftslokal vom Verpflichteten geräumt wird. Das Langgutachten enthält eine detaillierte Beschreibung des Gebäudebestandes sowie der bewertungsgegenständlichen Wohnungseigentumsanteile.
Grundstücksgröße: 19.273 m²
Objektgröße: 110,00 m²
Schätzwert: 188.000,00
geringstes Gebot: 94.000,00
Vadium: 18.800,00
Langgutachten: Eipeldauer Straße 38_Gutachten.pdfEipeldauer Straße 38_Gutachten.pdf  
Lageplan: Lageplan-2.jpgLageplan-2.jpg  
Grundriss: Grundriss.jpgGrundriss.jpg  
Fotos: 01-Wohnhausanlage.JPG01-Wohnhausanlage.JPG   02-Wohnhausanlage.JPG02-Wohnhausanlage.JPG   03-Wohnhausanlage.JPG03-Wohnhausanlage.JPG   04-Wohnhausanlage.JPG04-Wohnhausanlage.JPG   05-Wohnhausanlage.JPG05-Wohnhausanlage.JPG   06-Wohnhausanlage.JPG06-Wohnhausanlage.JPG   07-Lokal_außen.JPG07-Lokal_außen.JPG   08-Lokal_außen.JPG08-Lokal_außen.JPG   09-Lokal_außen.JPG09-Lokal_außen.JPG   10-Lokal_außen.JPG10-Lokal_außen.JPG   11-großer_Büroraum.jpg11-großer_Büroraum.jpg   12-großer_Büroraum.jpg12-großer_Büroraum.jpg   13-großer_Büroraum.jpg13-großer_Büroraum.jpg   14-großer_Büroraum.jpg14-großer_Büroraum.jpg   15-großer_Büroraum.JPG15-großer_Büroraum.JPG   16-großer_Büroraum.JPG16-großer_Büroraum.JPG   17-großer_Büroraum.JPG17-großer_Büroraum.JPG   18-großer_Büroraum.JPG18-großer_Büroraum.JPG   19-großer_Büroraum.JPG19-großer_Büroraum.JPG   20-Abstellraum.JPG20-Abstellraum.JPG   21-Gang.jpg21-Gang.jpg   22-kleiner_Büroraum.jpg22-kleiner_Büroraum.jpg   23-kleiner_Büroraum.JPG23-kleiner_Büroraum.JPG   24-Sozialraum.jpg24-Sozialraum.jpg   25-Sozialraum.JPG25-Sozialraum.JPG   26-Sozialraum.JPG26-Sozialraum.JPG   27-Sanitärraum.JPG27-Sanitärraum.JPG   28-Sanitärraum.JPG28-Sanitärraum.JPG   29-Sanitärraum.JPG29-Sanitärraum.JPG  
Direktlink: https://edikte.justiz.gv.at/    (Eingebundene Vorschaubilder sind embedded content von edikte.justiz.gv.at; die Links verweisen direkt auf die entsprechende externe Seite.)


Supergünstig zum Eigenheim!
Über 60 Anbieter im kostenlosen
Online‑Kreditvergleich (Stand 04/2026)
Die besten Angebote - fix und variabel.
Top-Konditionen - schnell am Konto!
  Ideal für Beträge von 1.000 € bis 75.000 €
Der Ratenkredit aus dem Internet.
Einfach Zuhause die Anbieter vergleichen.
Abschluss online - schnell am Konto!
Hier: Kreditrate und Zinssatz berechnen!
  Das Maximum herausholen!
Die besten Sparzinsen Österreichs.
Fix (Festgeld) oder flexibel (täglich fällig).
Kostenloser Online-Zinsvergleich.
04/2026: Sparzinsen

Ortsende Wien  ♦  Niederösterreich  ♦  Burgenland  ♦  Oberösterreich  ♦  Salzburg  ♦  Tirol  ♦  Vorarlberg  ♦  Steiermark  ♦  Kärnten   

| Impressum  |  Datenschutz |