Zwangsversteigerung: 3001 Mauerbach Waldgasse 35 - Einfamilienhaus

Ortsanfang    Ortsanfang  


Wien  ♦  Niederösterreich  ♦  Burgenland  ♦  Oberösterreich  ♦  Salzburg  ♦  Tirol  ♦  Vorarlberg  ♦  Steiermark  ♦  Kärnten


Information   Details
Edikt: Versteigerung (02.07.2026)
Gericht - Aktenzeichen: BG Purkersdorf (019) - 5 E 19/25f
Liegenschaftsadresse: 3001 Mauerbach Waldgasse 35
Kategorie: Einfamilienhaus
Objektbezeichnung: Wohnhaus
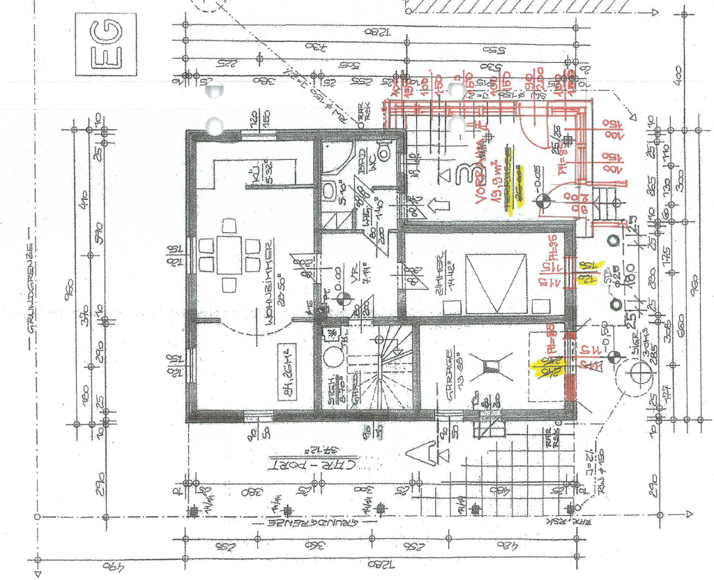
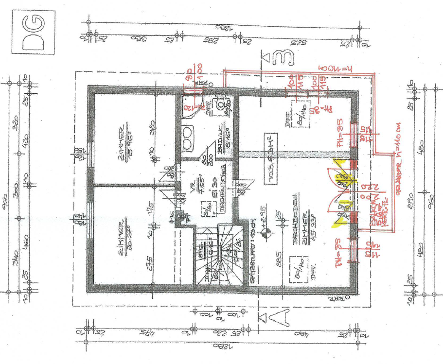
Beschreibung: Auf dem Grundstück Nr. 274/5 sind oein Wohnhaus sowie oCarport, oLagerraum/Werkstatt, oGartenhütte mit Sauna, ogedeckter Sitzplatz, oGarten-WC oein Schwimmbecken im Garten errichtet. Die Erschließung des Grundstücks mit dem Wohnhaus erfolgt über die angrenzende öffentliche Straße (Waldgasse). Das Wohnhaus besteht aus •Erdgeschoss •Dachgeschoss
Grundstücksgröße: 1.238 m²
Objektgröße: 201,00 m²
Schätzwert: 670.000,00
geringstes Gebot: 335.000,00
Vadium: 67.000,00
mitzuversteigerndes Zubehör: Zum Bewertungsstichtag war ersichtlich, dass im Wohnhaus Sanitäreinrichtung in zwei Badezimmern und je Geschoss eine Einbauküche vorhanden waren. Aufgrund des Alters wird dieses Zubehör nicht gesondert bewertet.
Wert des Zubehörs: 0,00
Langgutachten: GA-ohneAnh_Waldgasse_signed.pdfGA-ohneAnh_Waldgasse_signed.pdf   GA-Anhang_Waldgasse.pdfGA-Anhang_Waldgasse.pdf  
Lageplan: Bestandsplan_Waldgasse35_Lage.PNGBestandsplan_Waldgasse35_Lage.PNG  
Grundriss: Bestandsplan_Waldgasse35_EG.PNGBestandsplan_Waldgasse35_EG.PNG   Bestandsplan_Waldgasse35_DG.PNGBestandsplan_Waldgasse35_DG.PNG  
Fotos: 20260220_075402.jpg20260220_075402.jpg  
Direktlink: https://edikte.justiz.gv.at/    (Eingebundene Vorschaubilder sind embedded content von edikte.justiz.gv.at; die Links verweisen direkt auf die entsprechende externe Seite.)


Ihr Wohnkredit zu Top-Konditionen.
Kompetente, kostenlose Expertenberatung.
Für Hausbau oder Wohnungskauf.
Österreichweiter Marktvergleich.
Rasch und einfach: Wohnkredit-Rechner
  Das Maximum herausholen!
Die besten Sparzinsen Österreichs.
Fix (Festgeld) oder flexibel (täglich fällig).
Kostenloser Online-Zinsvergleich.
04/2026: Sparzinsen
  Kredit umschulden und Kosten sparen
mit einem Umschuldungskredit.
Egal ob Ratenkredit oder Immobilienkredit.
Kredite zu Top-Konditionen umschulden.
Hier: die neue Kreditrate berechnen!

Ortsende Wien  ♦  Niederösterreich  ♦  Burgenland  ♦  Oberösterreich  ♦  Salzburg  ♦  Tirol  ♦  Vorarlberg  ♦  Steiermark  ♦  Kärnten   

| Impressum  |  Datenschutz |