Versteigerung: 8813 St. Lambrecht Eben 18c - Einfamilienhaus

Ortsanfang    Ortsanfang  


Wien  ♦  Niederösterreich  ♦  Burgenland  ♦  Oberösterreich  ♦  Salzburg  ♦  Tirol  ♦  Vorarlberg  ♦  Steiermark  ♦  Kärnten


Information   Details
Edikt: Versteigerung (02.07.2026)
Gericht - Aktenzeichen: BG Murau (652) - 11 E 24/25x
Liegenschaftsadresse: 8813 St. Lambrecht Eben 18c
Kategorie: Einfamilienhaus
Objektbezeichnung: Wohnhaus
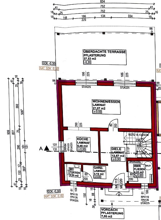
Beschreibung: Grundstück: Grundstück Nr. 155/37 im Ausmaß von 850 m²; das Grundstück ist nicht im Altlasten- und Verdachtsflächenkataster verzeichnet; das Grundstück ist im Grenzkataster verzeichnet (Verbindlichkeit der Grenzen und Größe); im Flächenwidmungsplan als WR (Reines Wohngebiet) mit einer Bebauungsdichte 0,2 – 0,6ausgewiesen; das Grundstück befindet sich teilweise innerhalb der Hochwasserüberflutungszone für ein 300-jähriges Ereignis; bebaut mit einem Wohnhaus und einer Gartenhütte; alle öffentlichen Anschlüsse sind vorhanden. Bebauung: Wohnhaus: Das Wohnhaus wurde beginnend im Jahr 2022 ohne Unterkellerung mit Erd- und Dachgeschoß als „Town & Country“ - Fertighaus errichtet; Baubewilligung für die Errichtung eines Einfamilienhauses mit Schutzüberdachung und Abstellraum vom 04.05.2022 vorhanden (es ist von einem konsensmäßigen Bestand auszugehen; entgegen der Baubewilligung wurde die eingangsseitige Schutzüberdachung und das westseitige Schutzdach inklusive einem Abstellraum jedoch nicht errichtet); Energiekennzahl: HWB = 59,7 kWh/m²a
Grundstücksgröße: 850 m²
Objektgröße: 114,28 m²
Ausrufpreis: 274.000,00
geringstes Gebot: 279.000,00
Vadium: 27.900,00
mitzuversteigerndes Zubehör: Küche (EG): Einbauküche (Zeilenlänge von ca. 9 m, Arbeitshöhe von ca. 95 cm) mit Unterbau- und Oberschränken, div. E-Geräte; Alter ca. 3 Jahre, Neupreis von ca. 12.000 EUR, pauschaler Zeitwert EUR 5.000,00
Wert des Zubehörs: 5.000,00
Langgutachten: Moser_HüblerWH_Gutachten_SVKogler.pdfMoser_HüblerWH_Gutachten_SVKogler.pdf  
Lageplan: Ortsplan.jpgOrtsplan.jpg  
Grundriss: Plan EG.jpgPlan EG.jpg   Plan DG.jpgPlan DG.jpg  
Fotos: Außenansicht Nordost.JPEGAußenansicht Nordost.JPEG   Außenansicht Ost.JPEGAußenansicht Ost.JPEG   Außenansicht Südost.JPEGAußenansicht Südost.JPEG   Außenansicht West.JPEGAußenansicht West.JPEG   EG - Küche.JPEGEG - Küche.JPEG   EG - Wirtschaftsraum.JPEGEG - Wirtschaftsraum.JPEG   DG - Bad II.JPEGDG - Bad II.JPEG   EG - Stiegenaufgang.JPEGEG - Stiegenaufgang.JPEG  
Direktlink: https://edikte.justiz.gv.at/    (Eingebundene Vorschaubilder sind embedded content von edikte.justiz.gv.at; die Links verweisen direkt auf die entsprechende externe Seite.)


Ideal für Beträge von 1.000 € bis 75.000 €
Der Ratenkredit aus dem Internet.
Einfach Zuhause die Anbieter vergleichen.
Abschluss online - schnell am Konto!
Hier: Kreditrate und Zinssatz berechnen!
  Supergünstig zum Eigenheim!
Über 60 Anbieter im kostenlosen
Online‑Kreditvergleich (Stand 04/2026)
Die besten Angebote - fix und variabel.
Top-Konditionen - schnell am Konto!
  Autoversicherung online 04/2026.
Anbieter in ganz Österreich vergleichen
und damit bis zu 700 Euro sparen.
Versicherung bequem online abschließen.
Jetzt Prämie sparen: Autoversicherung

Ortsende Wien  ♦  Niederösterreich  ♦  Burgenland  ♦  Oberösterreich  ♦  Salzburg  ♦  Tirol  ♦  Vorarlberg  ♦  Steiermark  ♦  Kärnten   

| Impressum  |  Datenschutz |