Zwangsversteigerung: 2421 Kittsee Spitalgasse 2 - Zweifamilienhaus

Ortsanfang    Ortsanfang  


Wien  ♦  Niederösterreich  ♦  Burgenland  ♦  Oberösterreich  ♦  Salzburg  ♦  Tirol  ♦  Vorarlberg  ♦  Steiermark  ♦  Kärnten


Information   Details
Edikt: Versteigerung (18.11.2025)
Gericht - Aktenzeichen: BG Neusiedl am See (320) - 4 E 2/25h
Liegenschaftsadresse: 2421 Kittsee Spitalgasse 2
Kategorie: Zweifamilienhaus
Objektbezeichnung: 2 Doppelhäuser im Rohbau
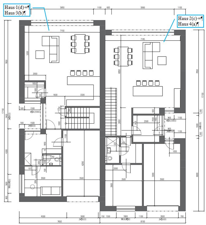
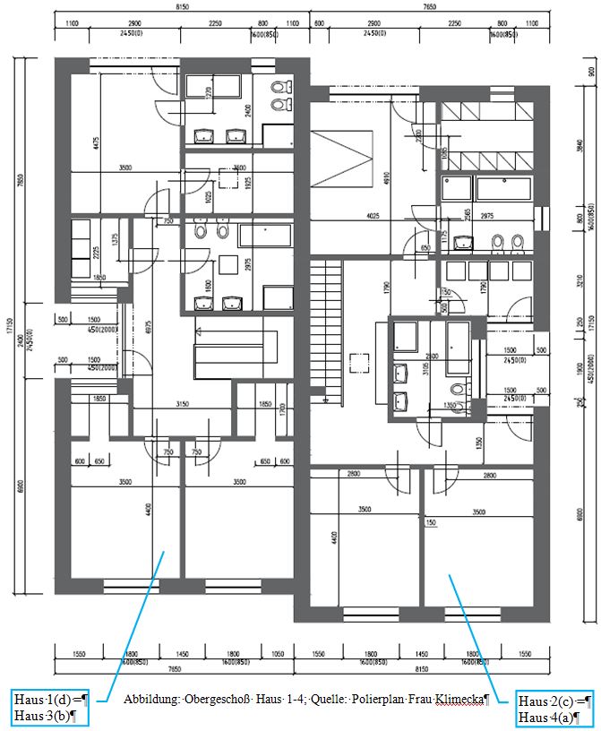
Beschreibung: Die beiden bewertungsgegenständlichen freistehenden, zweigeschossigen, nicht unterkellerten Doppelhäuser unter Flachdach mit nordostseitigen Terrassen im Erdgeschoß sind gemäß Planwerk annähernd ebenerdig zum angrenzenden Eingangsniveau und in etwa Parzellenmitte der möglichen künftigen Trennstücke situiert - siehe Langgutachten. Der Grundrisse der beiden freistehenden Doppelhäuser sind gemäß Planwerk ident, sie unterscheiden sich im Wesentlichen durch den Stiegenlauf, Haus 1(d) und 3(b): zweiläufige Stiege mit Zwischenpodest, Haus 2(c) und 4(a): einläufige Stiege entlang der Mittelmauer, sowie geringfügig abgeänderte spiegelverkehrte Raumeinteilungen. Über die annähernd mittig an der jeweiligen Gebäudelängsseite situierten Hauseingänge erfolgt der Zugang über die Hauseingangstür mit Oberlichte und seitlichem Stehflügel mit Glasfüllung in einem Gebäudeeinschnitt und ist durch die im Gebäudeeinschnitt situierte Loggia im Obergeschoß überdacht. Die Einfahrten zu den jeweiligen Garagen an den südlichen Außenecken der Doppelhaushälften erfolgt gemäß Plan über eine im Vorgartenbereich situierte befestigte Stellfläche (zum Befundungsstichtag noch nicht hergestellt). In Richtung des öffentlichen Parkplatzes an der rechten Grundstücksgrenze besteht schon ein Mauersockel mit Drahtzaunfeldern. Straßenseitig ist ein kurzes Stück einer Einfriedungsmauer aus Schalsteinen hergestellt und aufgrund von dichtem Pflanzenbewuchs nicht einsehbar. Die vier Wohneinheiten der beiden nicht unterkellerten Doppelhäuser befinden sich augenscheinlich in einem dem Fertigstellungsgrad und der Bauweise entsprechenden durchschnittlichen Erhaltungs- und Ausstattungszustand mit Fertigstellungs- und Instandsetzungsrückstau sowie Herstellungsrückstau der Außenanlagen einschließlich der Herstellung der Höhenlage des angrenzenden Außenniveaus. Wesentliche Feuchtigkeitsschäden waren am Tag der Befundaufnahme augenscheinlich nicht ersichtlich. Aufgrund der unfertigen Bausituation sind insbesondere durch weiterhin andauernde Feuchtigkeitseinwirkungen insbesondere in den nicht fertiggestellten Garagen-, Terrassen- bzw. Loggienbereichen sowie den teilweise nicht abgedichteten bzw. beschädigten Gebäudeöffnungen (Fenster- und Terrassenverglasung etc.) Feuchtigkeitseintritte und Schäden samt Folgeschäden an der Bausubstanz nicht auszuschließen. Aufgrund von Kotresten in Haus 1 kann darauf geschlossen werden, dass Marder oder andere Tiere in der Baustelle waren und könnten diese durch Verbiss Schäden verursacht haben. Fenster und Türen haben vermutlich hinsichtlich der Beschläge und Dichtungen sowie hinsichtlich Beschädigungen der Oberflächen Mängel. Es bestehen beschädigte Fenster und Terrassentüren (eingeschlagene Fensterscheiben). Die vorliegende Befundaufnahme stellt keine Zustandsbeurteilung im Sinne der ÖNORM B1300 dar. Ursprünglich war geplant, die Häuser im Edelrohbau (Gebäude außen fertiggestellt, innen belagsfertig ohne Fußbodenbeläge, ohne Türen und ohne Oberflächenbeläge und Sanitärausstattung im Bad/WC und ohne Wärmepumpe) zu verkaufen. Die in den Plänen dargestellten außenliegenden Kamine Schiedl Kerastar sind für keine Wohneinheit hergestellt. Das Haus 1(d) ist als Musterhaus im Edelrohbau bereits nahezu fertiggestellt. Auf dem Vollwärmeschutz ist Aussen das Netz und der Unterputz vor dem Anstrich aufgebracht, jedoch der Anstrich selbst noch nicht – außer in den Einschnitten vis-á-vis vom Stiegenhaus – dort ist die Vollwärmeschutzfassade noch ohne Putz. Die Fußbodenheizung ist augenscheinlich vorbereitet (ohne Funktionsprüfung). Es bestehen in beiden Geschoßen kleine Abänderung in der Raumteilng gegenüber dem Einreichplan, der Polierplan hinsichtlich der Raumteilung ist augenscheinlich aktuell. In den Räumen im Erdgeschoß - außer der Garage – besteht als Boden Estrich und es ist bereits fein verputzt und Elektroverkabelung augenscheinlich vorhanden (ohne Funktionsprüfung). Die Decke soll (entgegen den angegebenen Deckenaufbauten am Einreichplan) vermutlich mit Gipskarton abgehängt werden, da auf der Rohbetondecke die Installationen auf Putz geführt werden. Aufschließung und Verdrahtung sind angabengemäß vorhanden. Damit sind die Decken im Erdgeschoß nicht fertiggestellt. Die Wände sind fertiggestellt (verputzt), die Türstöcke und Türen sind nicht hergestellt. Die Glasscheibe der gartenseitigen Terrassentür im Erdgeschoß ist zerschlagenen. Die zweiläufige Innenstiege in das Obergeschoß besteht lediglich im Rohbau und ohne Absturzsicherung. Im Obergeschoß von Haus 1(d) ist ebenfalls am Boden der Estrich verlegt. Die Wände sind fertiggestellt (verputzt). Die Türstöcke und Türen sind nicht hergestellt, Elektroleitungen sind verlegt (ohne Funktionsprüfung). Innen liegend mit einer Lichtkuppel ist das Bad vorgesehen mit großer bodengleicher Dusche, Hänge-WC und Installationen für Waschbecken und Badewanne. Es fehlen somit in den Innenräumen der Innenanstrich bzw. die Wandbeläge (in den Nassräumen), im Erdgeschoß die abgehängten Decken, die Bodenbeläge samt Unterlage (Folie, Ausgleichsschichten etc.), Innentüren samt Zargen sowie Elektrokomplettierungen und Sanitärkomplettierung in den Nassräumen, Fensterbänke und Absturzsicherungen (Innenstiege und Loggia). Ein Element der Fixverglasung der dreiteiligen Schiebetür-Metallkonstruktion zur Terrasse im Erdgeschoß ist zerschlagen (Sicherheitsglas). Außenanlagen sind etwas begradigt worden und Müll und Aushub wurden größtenteils entfernt. Der Ausbaugrad von Haus 2(c) ist im Wesentlichen vergleichbar mit Haus 1(d). Im Erdgeschoß ist als Boden der Estrich vorhanden, Installationen mit Verdrahtung vorhanden, Wände sind verputzt, hinsichtlich der Decken fehlen die Untersichten. Die Decke soll (entgegen den angegebenen Deckenaufbauten am Einreichplan) vermutlich mit Gipskarton abgehängt werden, da auf der Rohbetondecke die Installationen auf Putz geführt werden. Rohinstallation eines WC-Blocks ist hergestellt, die Absturzsicherung der Stiege fehlt. Die Garage ist noch ohne Estrich, es ist nur der Rohbeton vorhanden und das Garagentor fehlen ebenfalls wie vor. Im Obergeschoß ist de facto hinsichtlich des Bodens der Estrich fertig, die Wände sind verputzt, Decken sind im Unterschied zum Haus 1(d) nicht fertiggestellt (Leitungen auf Putz wie im EG). Im WC bestehen nur die Rohinstallationen. Im Obergeschoß ist auch der WC-Block bereits eingebaut. Im Obergeschoss sind lediglich auf den beiden Räumen zur Gasse die mit Gipskarton abgehängten Decken aufgebracht und verspachtelt, in den anderen Räumen jedoch nicht. Auch im Zimmer hinten, im Bad, im Garderobenraum und Technikraum sind die abgehängten Decken bereits verspachtelt. Im Schlafzimmer gartenseitig sind mehrere Fensterscheiben kaputt. Auch die Fensterdichtungen sind bereits zum Teil schadhaft. Die Vollwärmeschutzfassade ist bis auf den Farbanstrich mit Netz und Verspachtelung fertiggestellt. Im Eingangsbereich fehlt noch der Verputz. Entgegen dem Plan sind Garderobe und Bad vertauscht worden und auch die Anordnung der Anschlüsse etwas geändert worden. Bei Haus 3 ist der Fertigstellungsgrad noch geringer. Das Haus ist außen noch unverputzt. Es ist de facto im Erdgeschoß wie auch im Obergeschoß lediglich der Rohbau mit Fenstern und Außentüren, jedoch ohne Garagentor, vorhanden und die Bodenplatte angabengemäß gegen Feuchtigkeit isoliert. Es fehlen der Innenputz und auch die gesamten Installationen einschließlich Fußbodenheizung. Haus 3 hat wie Haus 1 eine zweiläufige Treppe im Rohbau. Im Obergeschoß bestehen die Ziegel-Zwischenwände und die Rohdecke ohne Aufbauten, ohne Innenverputz, ohne Installationen, lediglich das Dach ist angabengemäß fertig. Haus 4 war bei der Befundaufnahme innen nicht zugänglich. Angabengemäß befindet es sich im Rohbauzustand wie Haus 3 – es handelt sich lediglich um einen Ziegelrohbau mit Fenstern, Außentüren und fertigem Dach, das Garagentor fehlt noch. Eine große Scheibe der terrassenseitigen Fixverglasung im Erdgeschoß ist geborsten. Durch die Fenster ist in den einsehbaren Bereichen der Rohbau feststellbar. Hinsichtlich des Doppelhauses Haus 1(d) und Haus 2(c) besteht außen Fertigstellungsrückstau bei der Fassade samt Außenjalousien, Fensterbänken, Absturzsicherungen, Verblechungen und Garagenstoren sowie bei den Oberflächen der Loggien und Terrassen. Innen besteht Fertigstellungsrückstau des Edelrohbaus (insbesondere fachgerechte Fertigstellung der Deckenuntersichten im Obergeschoß (entgegen dem Plan wird von abgehängte Decken ausgegangen) sowie überwiegender Fertigstellungsrückstau der Ausstattung als Edelrohbau (beispielsweise Innentüren samt Zargen, Belagsfertigkeit der Boden-, Wand- und Deckenoberflächen, Innenfensterbänke, Absturzsicherungen etc.) sowie Fertigstellungsrückstau der teils fertiggestellten Ausstattungselemente (Fenster und Terrassentüren samt Außenverschattungen etc.). Die Haustechnik (E-Installationen, Verrohrung, Warmwasserbereitung, Heizung etc.) ist augenscheinlich teilweise vorbereitet, bei der Befundaufnahme noch nicht fertiggestellt und nicht betriebsbereit, die normgemäße Funktionstüchtigkeit der gesamten hergestellten haustechnischen Anlagen wurde nicht geprüft. Entsprechend dem Fertigstellungsgrad liegen keine entsprechenden Befunde der Gebäudetechnik vor. Hinsichtlich des Doppelhauses Haus 3(b) und Haus 4(a) besteht außen Herstellungsrückstau bei der Fassade samt Vollwärmeschutz, Fenster- und Terrassentüranschlüssen, Außenjalousien, Fensterbänken, Absturzsicherungen, Verblechungen und Garagenstoren sowie bei den Oberflächen der Loggien und Terrassen. Innen besteht Fertigstellungsrückstau des Edelrohbaus (insbesondere fachgerechte Fertigstellung der Bauteiloberflächen im Erdgeschoß und im Obergeschoß sowie Herstellungsrückstau der Ausstattung als Edelrohbau (beispielsweise Innentüren samt Zargen, Belagsfertigkeit der Boden-, Wand- und Deckenoberflächen etc.) sowie Fertigstellungsrückstau der teils hergestellten Ausstattungselemente (Fenster, Terrassentüren, Haustechnik, Innenfensterbänke, Absturzsicherungen etc.). Die Haustechnik (E-Installationen, Verrohrung, Warmwasserbereitung, Heizung etc.) ist augenscheinlich kaum vorbereitet, es fehlen die gesamten Installationen einschließlich Fußbodenheizung samt Aufbauten. Die Außenanlagen sind entsprechend dem unfertigen Bauzustand nicht vorhanden. Somit besteht insgesamt zum Bewertungsstichtag kein baubehördlicher Konsens (keine Fertigstellung gem. § 30 NÖ BO, keine Bauführerbescheinigung oder dgl., keine in der Baubewilligung vorgeschriebene Befunde, Elektro-Atteste, etc., Einbau von Stahlstützen und -trägern entgegen dem bewilligten Einreichplan, Abweichungen vom Einreichplan etc.). Weiters ist die einmalig verlängerte Baubewilligung per 31.03.2023 erloschen. Der zeichnende Sachverständige weist darauf hin, dass die Konsensfähigkeit aufgrund des unfertigen Fertigstellungsgrades und bereits zum Teil augenscheinlich festgestellter Abweichungen vom Einreichplan (Raumhöhen nach Fertigstellung etc.) nicht behauptet werden kann. Eventuell kann die Baubehörde zur Fertigstellung weitere Nachweise einfordern oder Auflagen bestimmen. Interessenten wird die Einsicht in das Langgutachten und die Besichtigung vor Ort dringend empfohlen und weiters empfohlen mit der Gemeinde zu offenen Baubehördlichen Themen Rücksprache zu halten. Das Vadium ist beim Versteigerungstermin in Form eines Sparbuches zu erlegen. Die verpflichtete Partei hat auf die Steuerbefreiung gemäß § 6 Abs 1 Z 9 lit a UStG 1994 nicht verzichtet.
Grundstücksgröße: 1.735 m²
Objektgröße: 718,36 m²
Schätzwert: 950.000,00
geringstes Gebot: 475.000,00
Vadium: 95.000,00
mitzuversteigerndes Zubehör: Die Bewertung der Liegenschaft beinhalten grundsätzlich alle zum Stichtag auf dem Grundstück errichteten Gebäude und das darin eingebaute und fix montierte Zubehör, insbesondere auch alle Gebäudeausstattungen wie z.B. Sanitär-, Heizungs- und Elektro-installationen, samt deren Anlagen und Gerätschaften. Im Verkehrswert sind auch alle anderen Baulichkeiten und Sonderbauwerke, wie z.B. die vorhandenen Außenanlagen, Einfriedungen, sämtliche Ver- und Entsorgungseinrichtungen, bzw. entsprechende Anlagen enthalten. Bei nicht gesondert ausgewiesener Bewertung des o. a. Zubehörs ist dieses im Wertansatz des Gebäudewertes berücksichtigt. Inventar, insbesondere Möbel, sind nicht Gegenstand dieser Wertermittlung.
Langgutachten: GA_2421Kittsee_EZ 2941,Spitalgasse2_2DH_E_05-05-2025_FIN_signed.pdfGA_2421Kittsee_EZ 2941,Spitalgasse2_2DH_E_05-05-2025_FIN_signed.pdf  
Lageplan: Lageplan.JPGLageplan.JPG  
Grundriss: Grundriss Polierplan EG.JPGGrundriss Polierplan EG.JPG   Grundriss Polierplan OG.JPGGrundriss Polierplan OG.JPG  
Fotos: PXL_20250225_113138891.jpgPXL_20250225_113138891.jpg   PXL_20250225_113155649.jpgPXL_20250225_113155649.jpg   PXL_20250225_112305830.jpgPXL_20250225_112305830.jpg   PXL_20250225_113054518.jpgPXL_20250225_113054518.jpg   PXL_20250225_113002709.jpgPXL_20250225_113002709.jpg   PXL_20250225_105244547.jpgPXL_20250225_105244547.jpg   PXL_20250225_113311268.jpgPXL_20250225_113311268.jpg   PXL_20250225_113512884.jpgPXL_20250225_113512884.jpg   PXL_20250225_113516836.jpgPXL_20250225_113516836.jpg   PXL_20250225_114031057.jpgPXL_20250225_114031057.jpg   PXL_20250225_105316604.jpgPXL_20250225_105316604.jpg   PXL_20250225_114832405.jpgPXL_20250225_114832405.jpg   PXL_20250225_115520393.jpgPXL_20250225_115520393.jpg   PXL_20250225_115918926.jpgPXL_20250225_115918926.jpg   PXL_20250225_105122652.jpgPXL_20250225_105122652.jpg   PXL_20250225_115651035.jpgPXL_20250225_115651035.jpg   PXL_20250225_115756427.jpgPXL_20250225_115756427.jpg   PXL_20250225_115824447.jpgPXL_20250225_115824447.jpg  
Direktlink: https://edikte.justiz.gv.at/    (Eingebundene Vorschaubilder sind embedded content von edikte.justiz.gv.at; die Links verweisen direkt auf die entsprechende externe Seite.)


Autoversicherung online 10/2025.
Anbieter in ganz Österreich vergleichen
und damit bis zu 700 Euro sparen.
Versicherung bequem online abschließen.
Jetzt Prämie sparen: Autoversicherung
  Supergünstig zum Eigenheim!
Über 60 Anbieter im kostenlosen
Online‑Kreditvergleich (Stand 10/2025)
Die besten Angebote - fix und variabel.
Top-Konditionen - schnell am Konto!
  Top Versicherungsschutz für Ihre Immobilie.
Durch online-Preisvergleich zur besten Eigenheimversicherung.
Top aktuelle Angebote: Stand 10/2025
Online-Test: Eigenheimversicherung

Ortsende Wien  ♦  Niederösterreich  ♦  Burgenland  ♦  Oberösterreich  ♦  Salzburg  ♦  Tirol  ♦  Vorarlberg  ♦  Steiermark  ♦  Kärnten   

| Impressum  |  Datenschutz |